Industrieimmobilie mieten - Rue Des Sablières 4, 1242 Satigny
Warum Sie diese Immobilie lieben werden
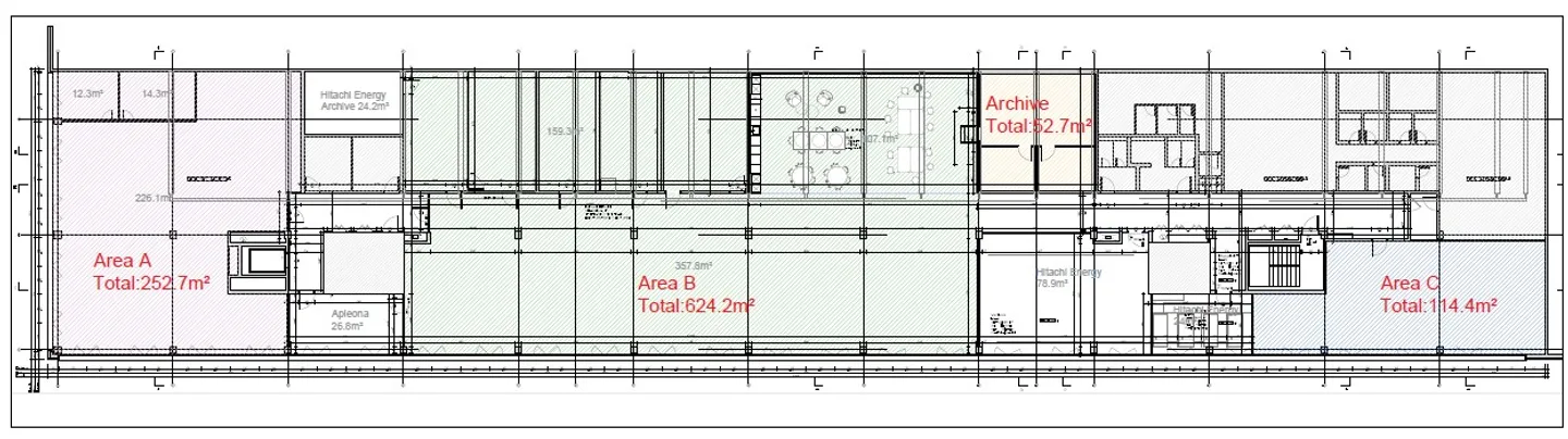
Teilbare Büroflächen
Aufzug und Lastenaufzug
Parkplätze für 20 Autos verfügbar
Besichtigung vereinbaren
Besichtigung mit Picque buchen
Industrielles objekt
Büroflächen zur Miete in Satigny
Ausgestattete Räumlichkeiten
991 m2 teilbare Büros ab 252 m2
Aufzug/Lift
Sanitärblöcke mit Duschen
1 Lastenaufzug (maximale Last 1.600 kg) und 2 Aufzüge (maximale Last 3.200 kg)
Sprinkler
Brandmeldeanlage
20 Parkplätze (CHF 2.400.-/Einheit/Jahr)
Verfügbarkeit nach Vereinbarung
Immobiliendetails
- Verfügbar ab
- Nach Vereinbarung
- Wohnfläche
- 252 m²



