Bürofläche mieten - Bahnhofplatz 4, 6130 Willisau
Warum Sie diese Immobilie lieben werden
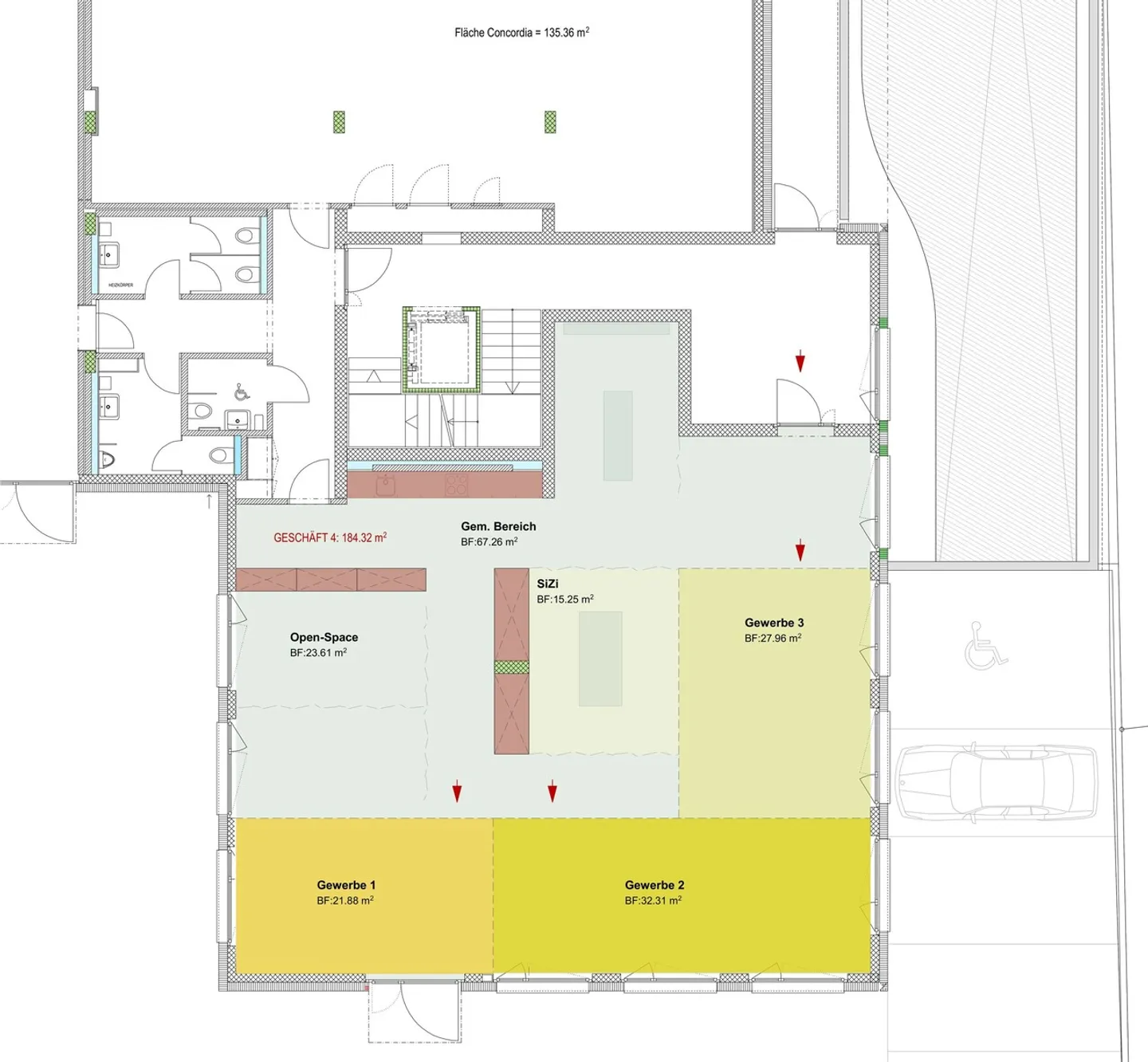
Flexible Raumgestaltung
Hervorragende Verkehrsanbindung
Essen und Freizeit in der Nähe
Besichtigung vereinbaren
Besichtigung buchen
«attraktive büroflächen direkt am bahnhof willisau»
Das repräsentative Wohn- und Geschäftshaus befindet sich in Willisau direkt beim Bahnhof und überzeugt mit einer sehr guten Verkehrserschliessung. Für Ihren Mittags-Lunch befinden sich Restaurants und Bäckereien in Gehdistanz. Ihre Freizeit kommt ebenfalls nicht zu kurz. Diverse Sport- und Erholungsmöglichkeiten befinden sich nur wenige Gehminuten entfernt.
Profitieren Sie von einer frequentierten Lage direkt am Bahnhof Willisau. Hier werden Sie gesehen!
Die helle und flexibel einteilbare Fläch...
Immobiliendetails
- Verfügbar ab
- Nach Vereinbarung



