Bürofläche mieten - Rue De La Bergère 3a, 1217 Meyrin
Warum Sie diese Immobilie lieben werden
300m2 flexible Fläche
3 private Eingänge
15 Parkplätze verfügbar
Besichtigung vereinbaren
Besichtigung mit Klaus buchen
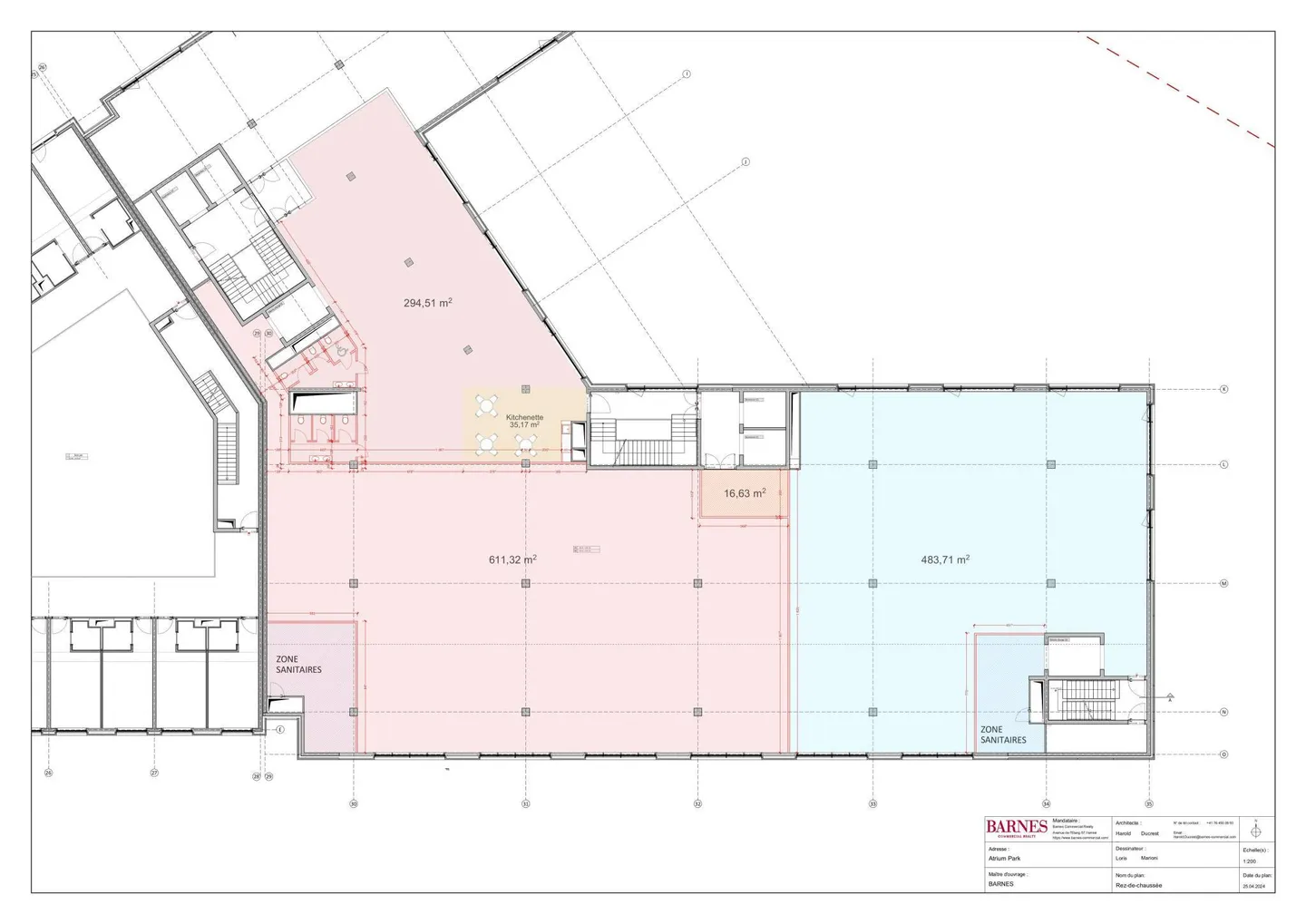
Wir freuen uns, Ihnen diese außergewöhnliche Gelegenheit zur Anmietung eines 300m2 großen Büros im Herzen des dynamischen Industriegebiets von Meyrin präsentieren zu können. Eingebettet im 2. Stock eines modernen Gebäudes bietet dieser Raum eine optimale berufliche Umgebung für Ihr Unternehmen.
Hauptmerkmale :- Fläche: 300m2
- Etage: 2. Etage
- Eingänge: 3 separate Eingänge
- Einrichtungen: Lastenaufzug verfügbar
- Layout: Rohfläche mit Beteiligung des Eigentümers an der Gestaltung inklusive
Neben d...
Immobiliendetails
- Verfügbar ab
- Nach Vereinbarung
- Parkplätze im Freien
- 1
- Wohnfläche
- 300 m²
- Nutzfläche
- 300 m²



