Geschäft mieten - Poststrasse 39, 8212 Neuhausen am Rheinfall
Warum Sie diese Immobilie lieben werden
Grosse Schaufenster
Kundenparkplätze vorhanden
Ideal für Einzelhandel
Besichtigung vereinbaren
Besichtigung mit Larissa buchen
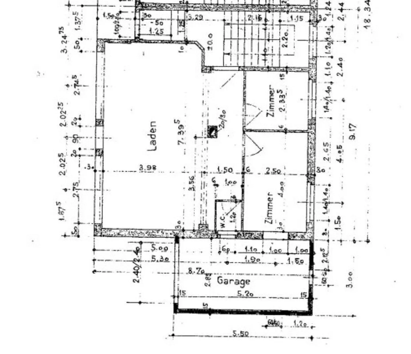
Laden im Herzen von Neuhausen
Im Herzen von Neuhausen befindet sich dieser charmante kleine Laden. Augestattet ist der Laden mit einer grossen Trese, kleines WC mit Lavabvo, zwei ZImmer und zwei grossen Schaufenstern.
Vor dem Laden hat es Parkmlöglichkeiten für Kunden.
Zurzeit befindet sich dort eine Mercerie, sowie Änderungsschneiderei. Die jetzige Mieterin ist an einer Übergabe des Inventars interessiert.
Haben wir Ihr Interesse geweckt? Wir freuen uns auf Ihre Kontaktaufnahme!
Kostenaufstellung
- Nettokosten
- CHF 840
- Zusätzliche Kosten
- CHF 240
- Gesamtkosten
- CHF 840
Immobiliendetails
- Verfügbar ab
- 01.10.2026



