Lagerraum mieten - Waldeggstrasse 37, 3097 Liebefeld
Warum Sie diese Immobilie lieben werden
Flexible Nutzungsmöglichkeiten
Ausgezeichnete Verkehrsanbindung
Ausreichend Parkmöglichkeiten
Besichtigung vereinbaren
Besichtigung buchen
Gewerbefläche an idealer lage
Allgemeines
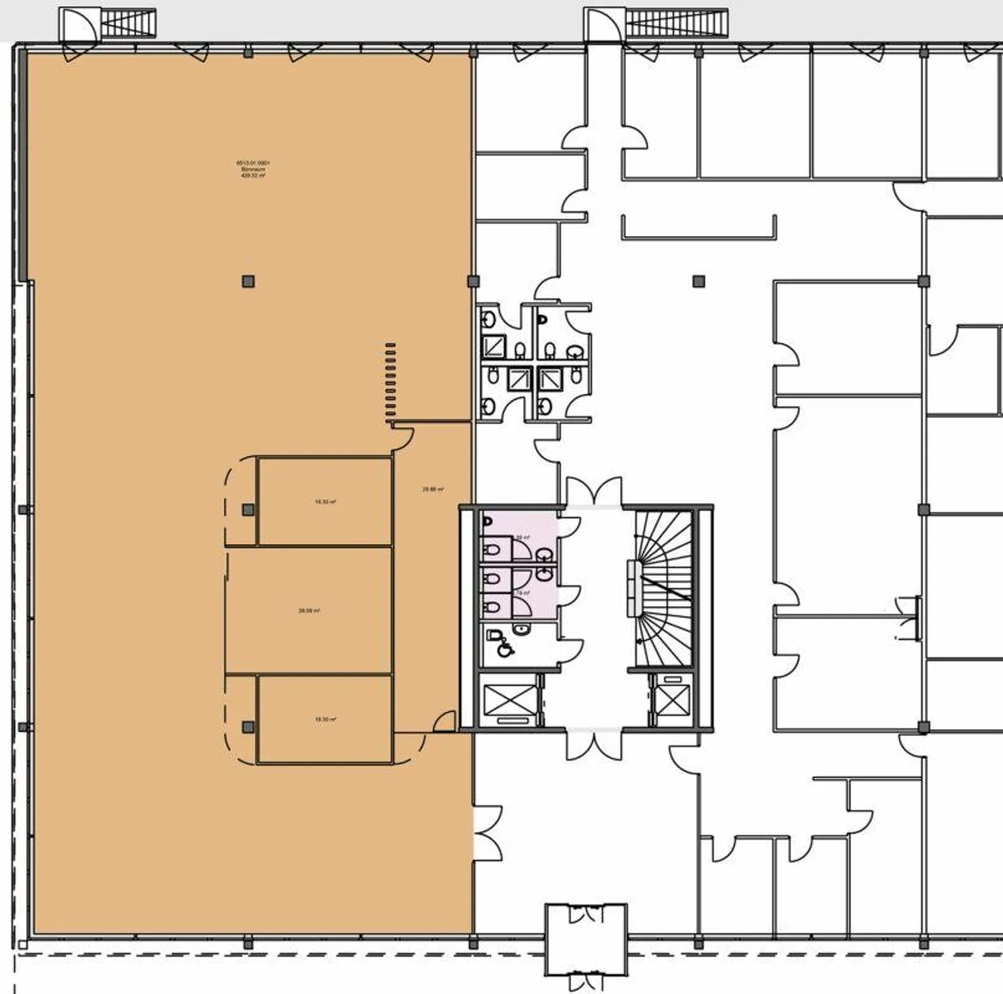
Zur Vermietung steht eine Fläche von 525 m2 im Erdgeschoss.
Die Fläche kann als Büro-, Gewerbe- oder Lager sowie medizinisches Labor verwendet werden.
Das Objekt wurde ursprünglich im Rohbau vermietet. Mittlerweile ist es teilweise ausgebaut, teilweise im Edelrohbau. Die vorhandenen Einbauten, Einrichtungen, Ausstattungen und Installationen gehören zum Mieterausbau und fliessen in die Verhandlungen ein.
Die zukünftigen Mieter werden unter denselben Bedingungen in den Mietvertrag eintrete...
Immobiliendetails
- Verfügbar ab
- Nach Vereinbarung
- Wohnfläche
- 525 m²



