Geschäft mieten - Rue De La Cassarde 34, 2000 Neuchâtel
Warum Sie diese Immobilie lieben werden
Flexible Gestaltungsmöglichkeiten
Strategische Lage an stark befahrener Straße
Einfacher Zugang für Lieferungen
Besichtigung vereinbaren
Besichtigung mit Wincasa buchen
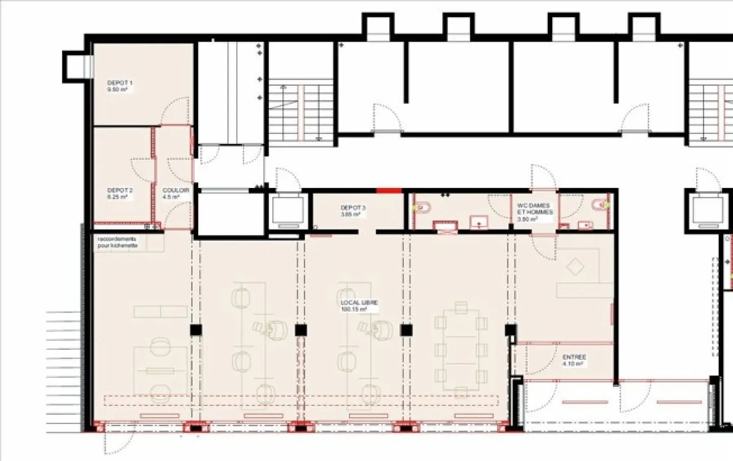
- Rohraum mit zahlreichen Gestaltungsmöglichkeiten entsprechend den Bedürfnissen des Mieters- Zwei Lagerflächen befinden sich im hinteren Bereich- Getrennte Toiletten für Männer und Frauen- Strategische Lage am Rande einer stark befahrenen Straße, in den Höhenlagen der Stadt- Leichter Zugang für Lieferungen und Entladungen- Ausgezeichnete Anbindung an den öffentlichen Nahverkehr (Bushaltestelle und Standseilbahn in der Nähe)
Immobiliendetails
- Verfügbar ab
- Nach Vereinbarung
- Baujahr
- 1970
- Wohnfläche
- 136 m²
- Nutzfläche
- 136 m²



