Gewerbe mieten - Alte Steinhauserstrasse 33, 6330 Cham
CHF 2’450
-
Warum Sie diese Immobilie lieben werden
Praktischer Parkplatz verfügbar
Flexible Mietkonditionen
Zentrale Lage in Cham
Besichtigung vereinbaren
Besichtigung mit Mike buchen
Mike Benz
MB Management and Consulting AG
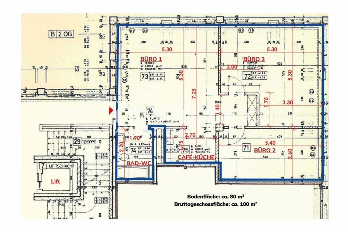
Attraktive büroräumlichkeit, in cham zg
Attraktive Büroräumlichkeit, in Cham ZG
Netto-Miete: CHF 2'100.-/Mt., zuzüglich Nebenkosten á-Konto: CHF 200.-/Mt.
1 Parkplatz in der Einstellhalle: CHF 150.- /Mt.
Miet-Kaution: CHF 5'000.-
(Kann auch über eine Mietkautions-Versicherung abgewickelt werden.)
Für weitere Informationen zu den attraktiven
Büroräumlichkeiten steht Ihnen Herr Mike Benz,
unter der Mobile-Nr. 079'779'22'33, gerne zur
Kostenaufstellung
- Nettokosten
- CHF 2’450
- Zusätzliche Kosten
- CHF 200
- Gesamtkosten
- CHF 2’450
Immobiliendetails
- Verfügbar ab
- Nach Vereinbarung
Eigenschaften
Lift
Agentur
MB Management and Consulting AG
Adresse:Cham, Alte Steinhauserstrasse, 6330
Ref: 9411c822-bb1e-11f0-89d7-069ae14c7a06
Online seit
08/11/2025
vor 6 Stunden
Standort
Alte Steinhauserstrasse 33, 6330 Cham



