Bürofläche mieten - Rorschacherstrasse 30a, 9424 Rheineck
Warum Sie diese Immobilie lieben werden
Helles Licht durch große Fenster
Individuelle Innenraumgestaltung
Nachhaltige Energielösungen
Besichtigung vereinbaren
Besichtigung mit Bischof buchen
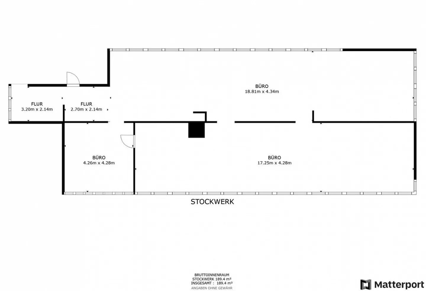
Flexible Bürofläche mit Ausbauoption in Rheineck
An zentraler Lage in Rheineck bieten wir eine helle und flexible Gewerbeeinheit im Rohbau zur Miete an. Der Ausbau kann nach Wunsch vom Vermieter übernommen werden (Standardausbau) - oder der Mieter gestaltet den Innenausbau ganz nach seinen eigenen Vorstellungen. Eine Photovoltaikanlage auf dem Dach sorgt für nachhaltige Energieversorgung; zudem stehen E-Ladestationen für Elektrofahrzeuge auf dem Areal zur Verfügung.
Je nach gewünschtem Ausbaustandard liegt der Mietpreis zwischen CHF 140.00 und ...
Immobiliendetails
- Verfügbar ab
- Nach Vereinbarung



