Bürofläche mieten - Poststrasse 3, 3400 Burgdorf
Warum Sie diese Immobilie lieben werden
Hohe Sichtbarkeit
Flexible Mietoptionen
Nahe beim Bahnhof
Besichtigung vereinbaren
Besichtigung mit Jon buchen
TOPLAGE - IHRE CHANCE FÜR RETAIL ODER DIENSTLEISTUNG
Attraktive Verkaufs-, Gewerbe- und Dienstleistungsfläche direkt beim Bahnhof Burgdorf
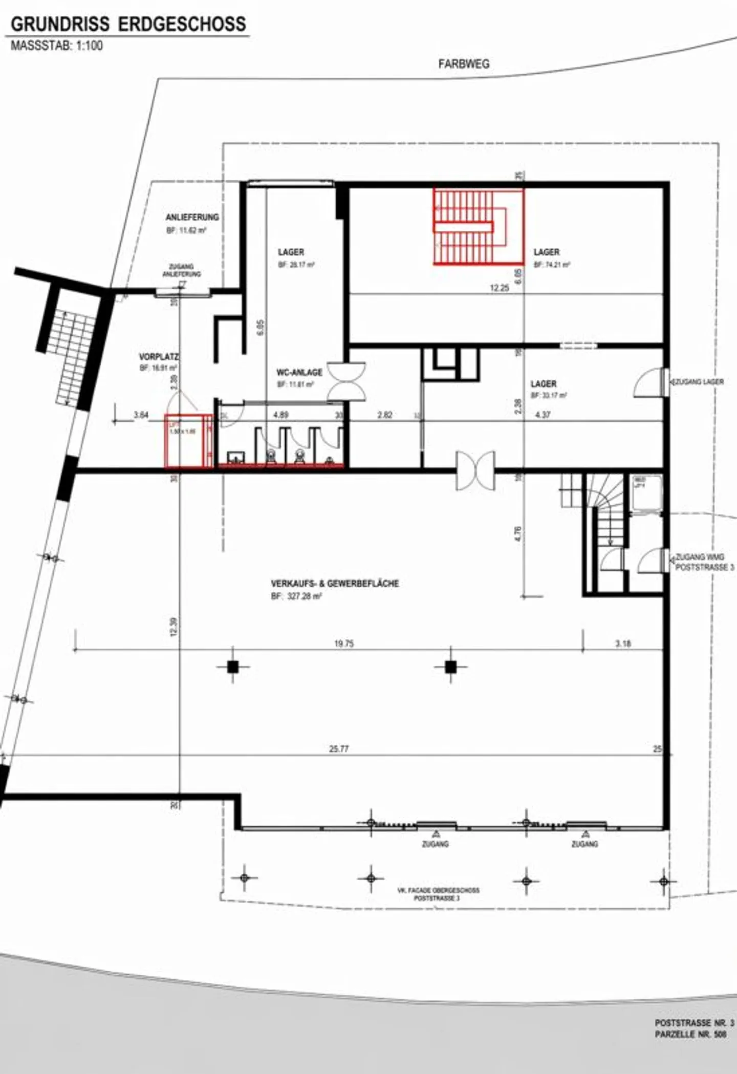
An zentraler und stark frequentierter Lage an der Poststrasse 3 in Burgdorf vermieten wir eine vielseitig nutzbare Fläche im Erdgeschoss mit ca. 500 m² Nutzfläche, davon rund 307 m² mit grosszügiger Schaufensterfront. Die Fläche kann gesamt oder in Teilflächen gemietet werden. Optional stehen im Untergeschoss zusätzliche Lagerflächen zur Verfügung.
Die Liegenschaft eignet sich ideal als Verkaufsfläche, Büro, Prax...
Immobiliendetails
- Verfügbar ab
- Nach Vereinbarung
- Wohnfläche
- 500 m²
- Nutzfläche
- 500 m²




