1 / 5

Arkade mieten - Pont Des Bergues 3, 1201 Genève

CHF 6’854.-
-

Warum Sie diese Immobilie lieben werden

Erstklassige Lage in Genf

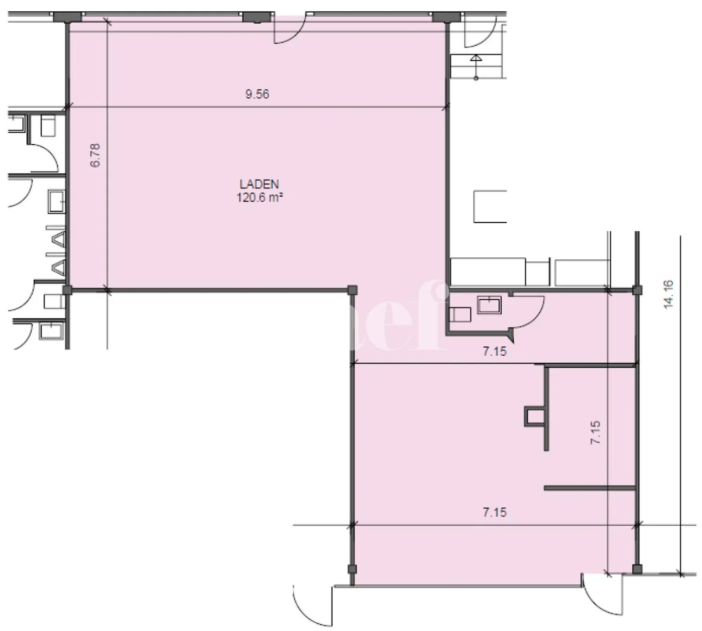
121 m² mit Straßenzugang

Vielseitig für verschiedene Geschäfte

Besichtigung vereinbaren

Besichtigung mit Service buchen

Service location
Naef Immobilier Genève SA
Diese Beschreibung wurde automatisch von Französisch übersetzt.

Arcade

Place des Bergues - Arcade von 121 m²

SITUATION

Die Galerie des Bergues befindet sich im Herzen von Genf, am rechten Ufer, zwischen dem Platz des Bergues und den Straßen Kléberg und Arnold Winkelried.

Sie hat eine ideale Lage in unmittelbarer Nähe des Bahnhofs Cornavin, des Sees und der Hotels.

GEBÄUDE

Dieses Gewerbegebäude besteht aus einer Einkaufsgalerie im Erdgeschoss und Büros in den oberen Etagen.

MERKMALE DER RÄUME

Diese Fläche von 121 m² ist durchgängig und verfügt sowohl über Sichtb...

Immobiliendetails

Verfügbar ab
Nach Vereinbarung

Eigenschaften

Lift

Agentur

Naef Immobilier Genève SA
Online seit
21/08/2025
vor 2 Monaten

Standort

Pont Des Bergues 3, 1201 Genève

Quellen