Gewerbe mieten - St. Gallerstrasse 2c, 8716 Schmerikon
Warum Sie diese Immobilie lieben werden
Hohe Raumhöhe von 3,50m
Flexible Gestaltungsmöglichkeiten
10 Besucherparkplätze vorhanden
Besichtigung vereinbaren
Besichtigung mit Marco buchen
"gewerbefläche im erdgeschoss mit hoher passantenfrequenz"
Per sofort oder nach Vereinbarung vermieten wir an der St. Gallerstrasse 2c in Schmerikon eine zentral gelegene Bürofläche mit einfacher und schneller Erreichbarkeit. Die Liegenschaft liegt direkt an der Hauptstrasse mit einem hohen Publikumsverkehr.
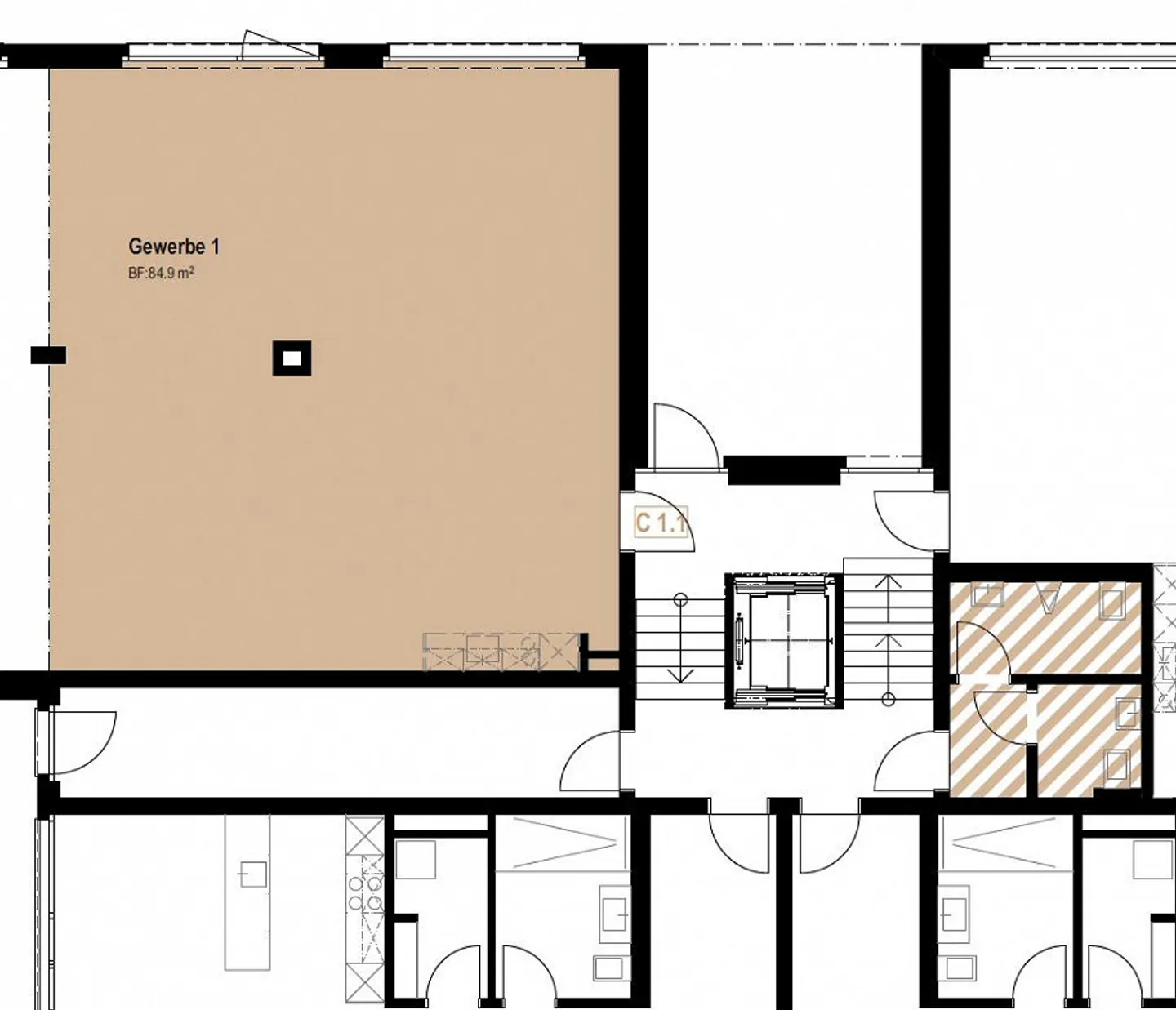
- Bürofläche im Edelrohbau
- Raumhöhe 3.50m
- Attraktive Fläche von 85m2
- Hohlbodensystem: ermöglicht individuelle und flexible Einbaumöglichkeiten wie z.B. Küche, zus. Sanitäranlagen
- Lagerfläche inklusive
- Inklusive WC
Da sehr gute Anbindungen an den ...
Kostenaufstellung
- Nettokosten
- CHF 1’855
- Zusätzliche Kosten
- CHF 119
- Gesamtkosten
- CHF 1’855
Immobiliendetails
- Verfügbar ab
- Nach Vereinbarung



