Bürofläche mieten - Via Cantonale 2a, 6928 Manno
Warum Sie diese Immobilie lieben werden
Energieeffizientes Gebäude
Hochwertige Materialien
Ausgezeichnete Schalldämmung
Besichtigung vereinbaren
Besichtigung buchen
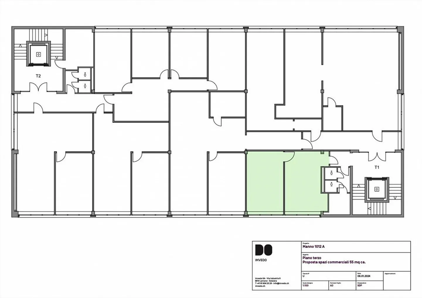
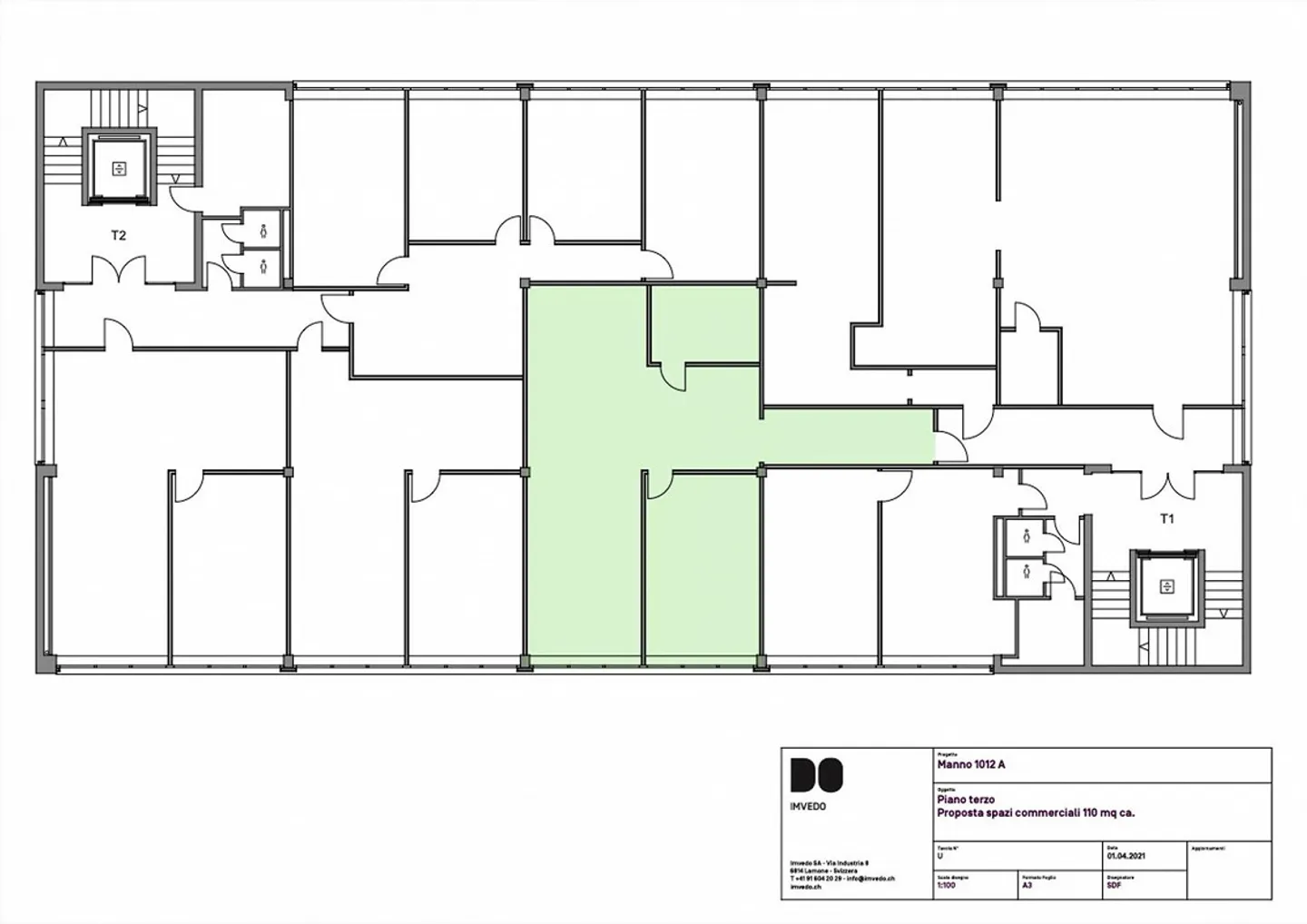
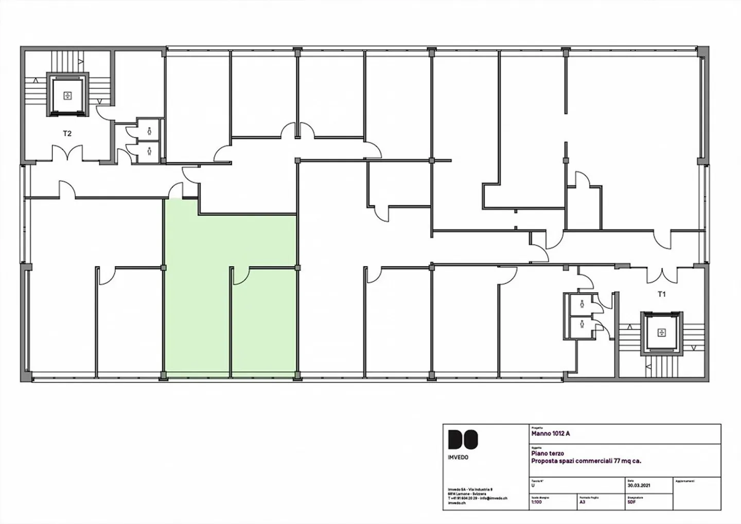
Büros in manno - 55, 77 oder 110 m²
Ab sofort oder nach Vereinbarung verfügbar sind Büros von 55, 77 oder 110 m² im dritten Stock des Gebäudes Manno 1012 A. Interessantes Gebäude mit folgenden Eigenschaften:
- energieeffiziente Konstruktion;
- hochwertige Materialien;
- hervorragende Wärme- und Schalldämmung;
- bequeme Zugänge;
- überdachte und Außenparkplätze
Das Gebäude befindet sich an einem strategischen Punkt von Manno, in der Nähe der Autobahnausfahrt Lugano Nord und des Vedeggio-Cassarate-Tunnels, in einem sehr interessanten und ...
Immobiliendetails
- Verfügbar ab
- Nach Vereinbarung
- Baujahr
- 1997



