Lagerraum mieten - Kasinostrasse 29, 5000 Aarau
Warum Sie diese Immobilie lieben werden
5 Min. zu Fuss zum Bahnhof
Liftzugang zum Lagerraum
Ideal für städtische Lagerung
Besichtigung vereinbaren
Besichtigung buchen
attraktiver Lagerraum in Mitten von Aarau!
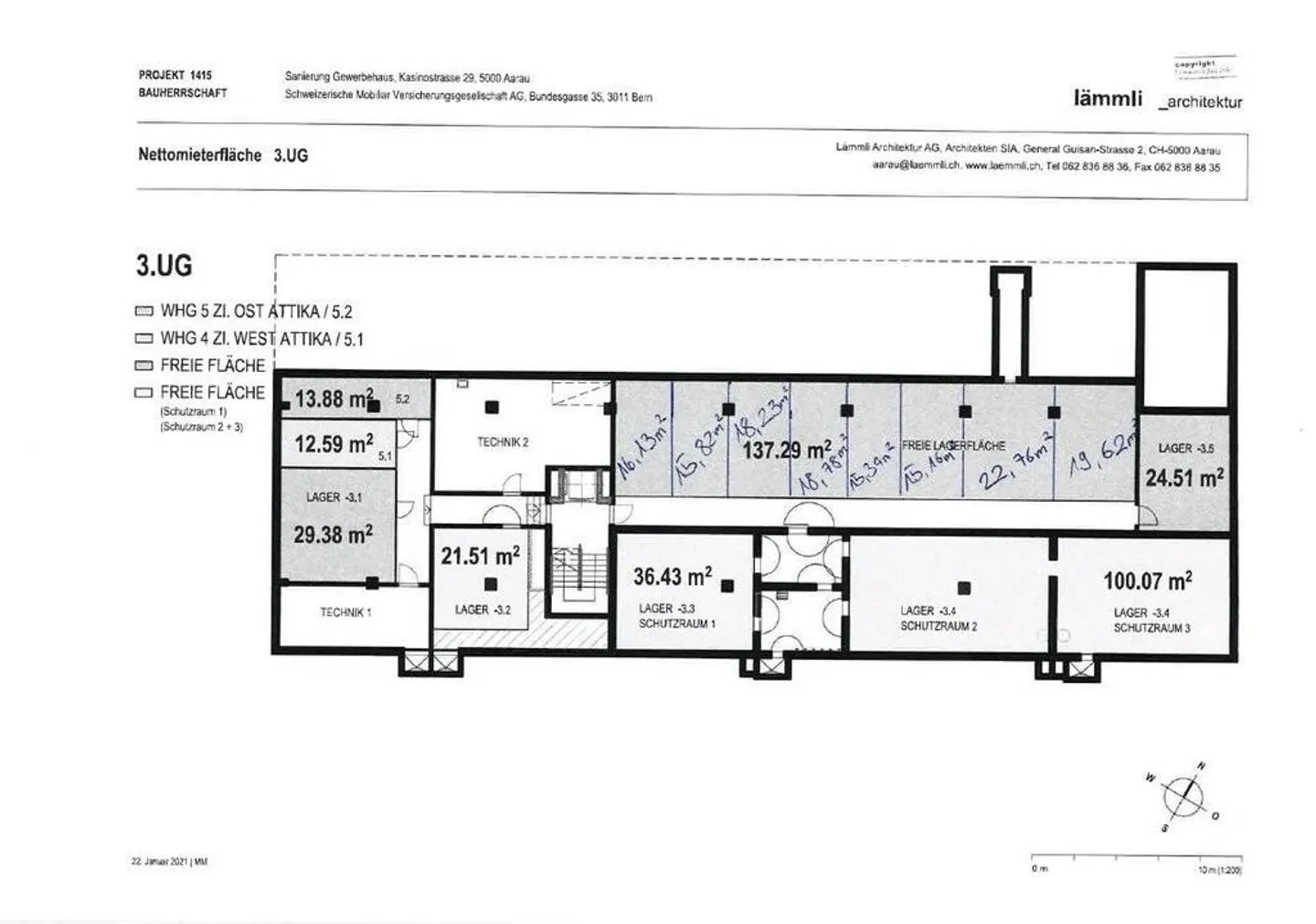
Mitten im Zentrum von Aarau und nur fünf Gehminuten vom Bahnhof entfernt, vermieten wir per 01. Juli 2026 einen Lagerraum von ca. 15 m2 im 3. Untergeschoss. Der Lagerraum ist mit einem Lift erschlossen.
Der Bruttomietzins beträgt monatlich CHF 115.00 zuzüglich MWST.
Haben wir Ihr Interesse geweckt? Gerne zeigen wir Ihnen die Lagerfläche vor Ort.
Kostenaufstellung
- Nettokosten
- CHF 115
- Zusätzliche Kosten
- CHF 15
- Gesamtkosten
- CHF 115
Immobiliendetails
- Verfügbar ab
- Nach Vereinbarung
- Baujahr
- 1966



