Arztpraxis mieten - Heckenweg 29, 3270 Aarberg
Warum Sie diese Immobilie lieben werden
Helle, geräumige Räume
Ideal für Therapieräume
Bequemer Zugang mit Lift
Besichtigung vereinbaren
Besichtigung mit Eliane buchen
Attraktive Gewerberäume an bester Lage in Aarberg
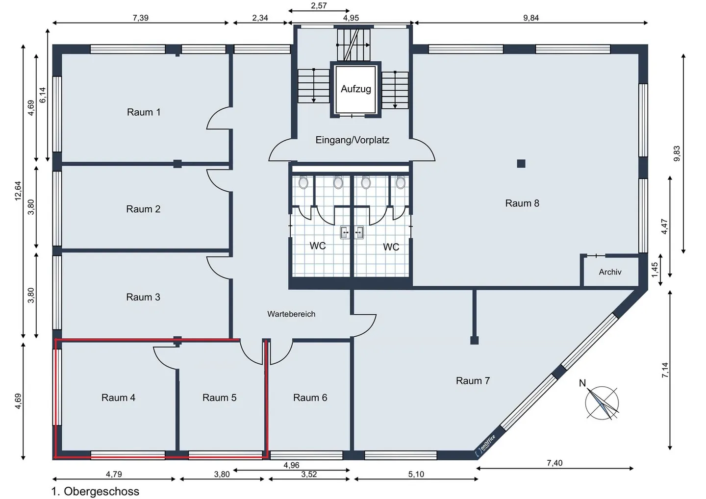
In einem gepflegten Gewerbegebäude an zentraler und gut erreichbarer Lage in Aarberg warten zwei vielseitig nutzbare Gewerberäume auf Sie. Dank der idealen Anbindung an den öffentlichen Verkehr sowie die Autobahn ist Ihr neuer Standort optimal erreichbar.
Ihre Vorteile auf einen Blick:
* Grosszügige, helle und sonnige Räume mit vielfältigen Nutzungsmöglichkeiten
* Die Räume sind durch einen Flur getrennt – ideal für zwei separate Therapie- oder Behandlungsräume
* Im 1. Obergeschoss gelegen und beque...
Kostenaufstellung
- Nettokosten
- CHF 775
- Zusätzliche Kosten
- CHF 75
- Gesamtkosten
- CHF 775
Immobiliendetails
- Verfügbar ab
- 01.01.2026
- Zimmer
- 2
- Wohnfläche
- 40 m²
- Nutzfläche
- 40 m²




