Gewerbe mieten - Rue Des Prélets 26, 2206 Les Geneveys-sur-Coffrane
1. Etage
CHF 1’600
-
Warum Sie diese Immobilie lieben werden
Geräumige Fläche von 200m²
Große Werkstatt von 130m²
Parkplätze verfügbar
Besichtigung vereinbaren
Besichtigung buchen
Diese Beschreibung wurde automatisch von Französisch übersetzt. 
Gewerbe 3 zimmer
Gewerbliche Räumlichkeiten in Les Geneveys-sur-Coffrane
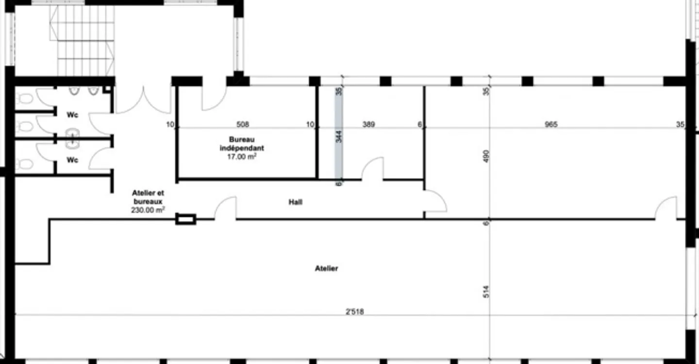
Gewerbefläche von 200m2 im 1. Stock, einschließlich eines Eingangsbereichs, einer großen Werkstatt von 130m2, einer Werkstatt von 47m2, einem Büro von 13m2 sowie zwei separaten Toiletten. Möglichkeit, Parkplätze zu mieten.
Kostenaufstellung
- Nettokosten
 - CHF 1’600
 - Zusätzliche Kosten
 - CHF 100
 - Gesamtkosten
 - CHF 1’600
 
Immobiliendetails
- Verfügbar ab
 - Nach Vereinbarung
 - Baujahr
 - 1902
 
Agentur
Online seit
03/11/2025
vor 17 Stunden
Standort
Rue Des Prélets 26, 2206 Les Geneveys-sur-Coffrane



