Geschäft mieten - Neugasse 26, 9000 St. Gallen
Warum Sie diese Immobilie lieben werden
Geräumiger Laden im Erdgeschoss
Moderne Infrastruktur
Zentrale Lage in der Altstadt
Besichtigung vereinbaren
Besichtigung mit maison.work buchen
Gewerbe in St. Gallen
Diese Gewerbefläche befindet sich derzeit in einem unsanierten Zustand. Bei Vertragsabschluss wird ein Umbau im Ausbaustandard gemäss der inserierten Visualisierung durch die Eigentümerschaft übernommen. Gewisse Aspekte können durch den Mieter mit bestummen werden.
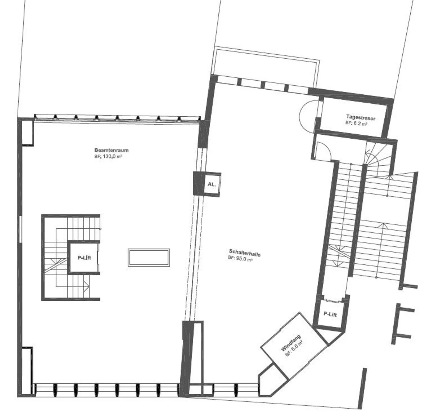
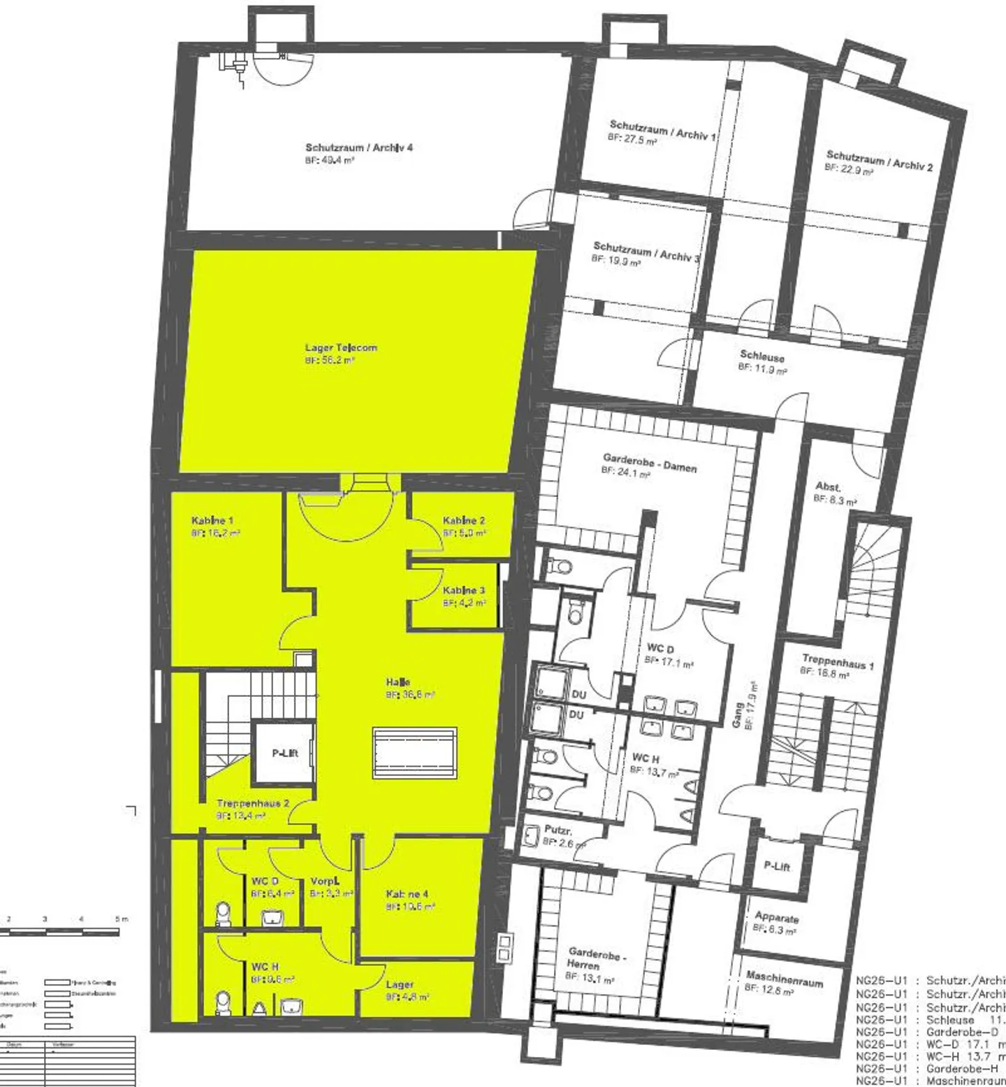
Das Gewerbe an der Neugasse 26 in St. Gallen besteht aus einer Verkaufsfläche im Erdgeschoss von 237m²sowie einer Lager- oder Bürofläche im 1. Untergeschoss von 157m². Die Mietkonditionen für die verfügbaren Fläch...
Immobiliendetails
- Verfügbar ab
- Nach Vereinbarung
- Wohnfläche
- 394 m²
- Nutzfläche
- 394 m²



