Bürofläche mieten - Vadianstrasse 25a, 9000 St. Gallen
Warum Sie diese Immobilie lieben werden
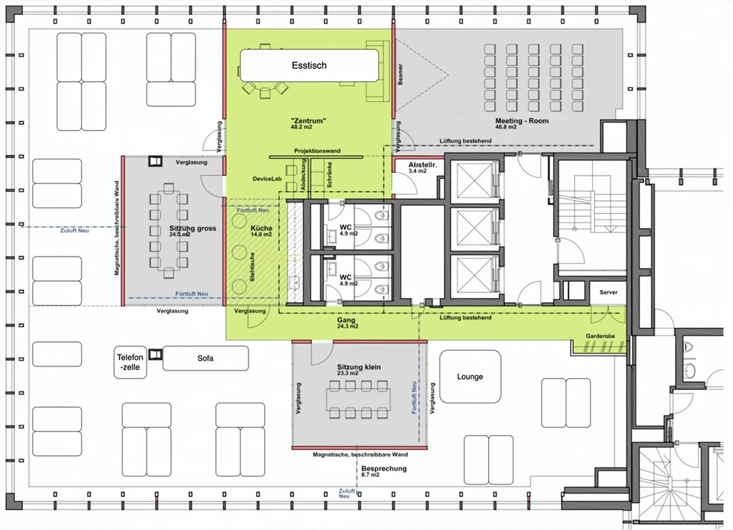
Grosszügiger Open-Space-Bereich
Drei helle Besprechungsräume
Moderne Infrastruktur vorhanden
Besichtigung vereinbaren
Besichtigung mit Kürsteiner buchen
Attraktive büroräumlichkeiten im neumarkt st.gallen
Im Neumarkt 5 stehen im 3. Obergeschoss 398 m² attraktive Büroräumlichkeiten zur Verfügung.
Aufgrund gesunkenen Eigenbedarfs suchen wir einen passenden Untermieter.
Die Fläche überzeugt durch:
-
einen grosszügigen Open-Space-Bereich mit Platz für zahlreiche Arbeitsplätze
-
drei separate, helle Meetingräume
-
moderne Infrastruktur mit Glasfaseranschluss, Strominstallationen und Klimaanlage
Lage & Umgebung
Das Büro liegt an zentralster Lage – nur wenige Gehminuten vom Bahnhof St. Gallen entfernt. D...
Kostenaufstellung
- Nettokosten
- CHF 7’620
- Zusätzliche Kosten
- CHF 1’491
- Gesamtkosten
- CHF 7’620
Immobiliendetails
- Verfügbar ab
- Nach Vereinbarung



