Bürofläche mieten - Chemin Des Erables 25, 1213 Petit-Lancy
Warum Sie diese Immobilie lieben werden
Ausgezeichnete Verkehrsanbindung
Helle Räume mit großen Fenstern
Parkplätze für Mieter verfügbar
Besichtigung vereinbaren
Besichtigung buchen
Büro
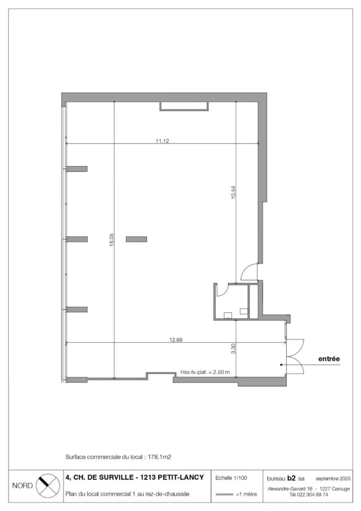
Surville-Petit-Lancy - CHF 315.--m2-an - Büros von 178m2
Bürofläche in Petit-Lancy – Chemin des Érables / route de Chancy, von etwa 178 m², gelegen im oberen Erdgeschoss..
In einem neuen Immobilienkomplex mit zeitgenössischer Architektur sind mehrere Geschäftsbögen zur Miete verfügbar.
Ideal gelegen in einem aufstrebenden Viertel, profitieren sie von hervorragender Sichtbarkeit sowie von einem einfachen Zugang mit öffentlichen Verkehrsmitteln (Straßenbahn, Bus) und Straßen.
• Bereits bestehende ...
Immobiliendetails
- Verfügbar ab
- Nach Vereinbarung
- Wohnfläche
- 178 m²



