Gewerbe mieten - Salerstrasse 23, 8050 Zürich
Warum Sie diese Immobilie lieben werden
Grosse Fenster für Sichtbarkeit
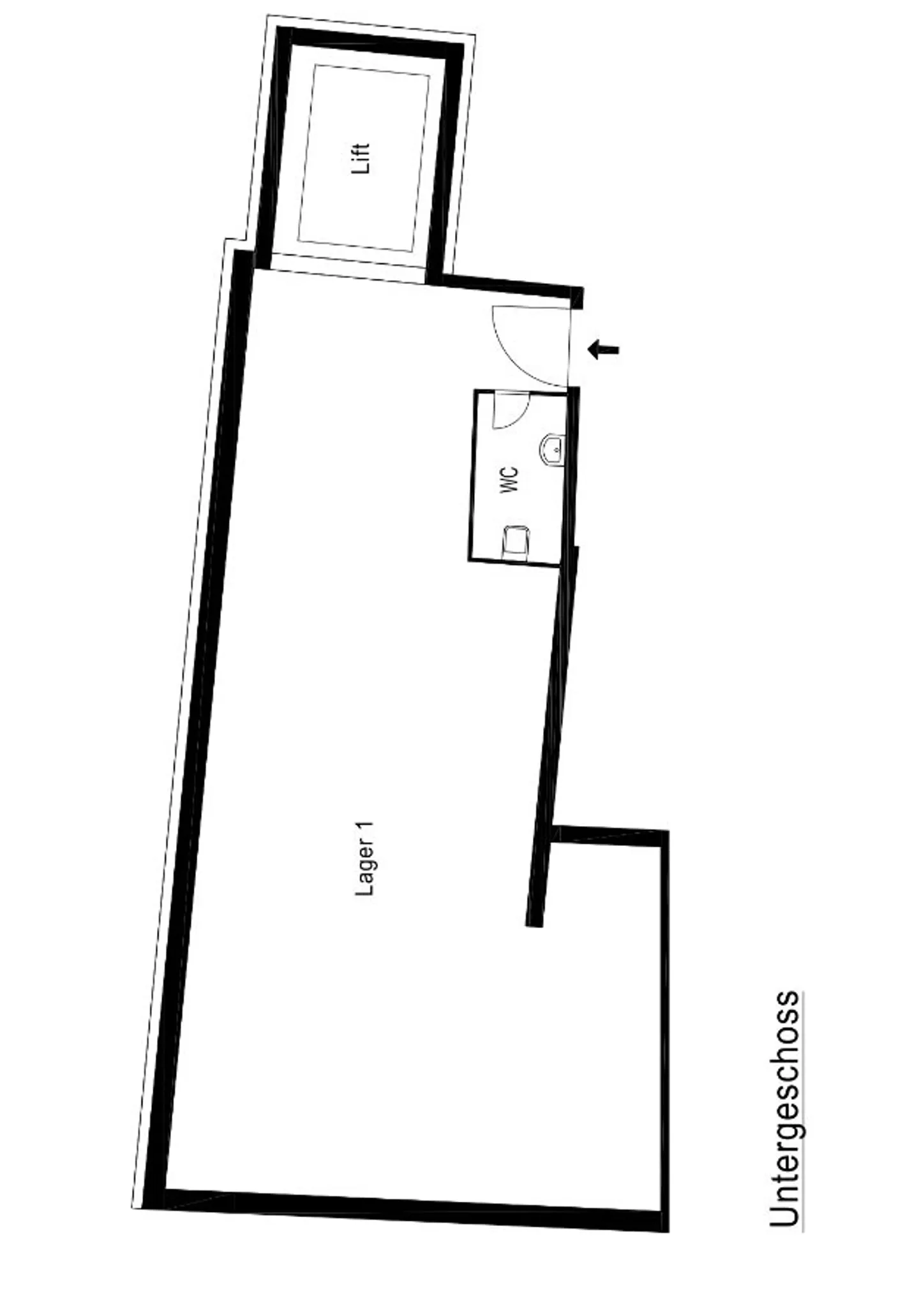
Geräumiger Lagerraum mit Lift
Top-Lage nahe Verkehrsanbindung
Besichtigung vereinbaren
Besichtigung mit Maja buchen
Gewerbefläche im eg an top-lage im zentrum von oerlikon
An zentraler, verkehrsgünstiger Lage in Oerlikon vermieten wir nach Vereinbarung ein attraktives Gewerbeobjekt mit grossen Schaufensterfronten und sehr guter Visibilität. Das grosse Lager im UG bietet viel Stauraum und verfügt über einen Warenlift.
Ausstattung und Highlights:
* Grosszügige Flächen im EG (ca. 138 m2) mit grossen Fensterfronten - viel Tageslicht & Sichtbarkeit
* Schöne Granitböden für ein hochwertiges Erscheinungsbild
* Hohe Räume, hochwertige Küche
* 2 WCs inkl. Dusche im EG (1 WC...
Kostenaufstellung
- Nettokosten
- CHF 6’800
- Zusätzliche Kosten
- CHF 260
- Gesamtkosten
- CHF 6’800
Immobiliendetails
- Verfügbar ab
- 12.12.2025
- Wohnfläche
- 212 m²
- Nutzfläche
- 212 m²



