Bürofläche mieten - Könizstrasse 23, 3008 Bern
Warum Sie diese Immobilie lieben werden
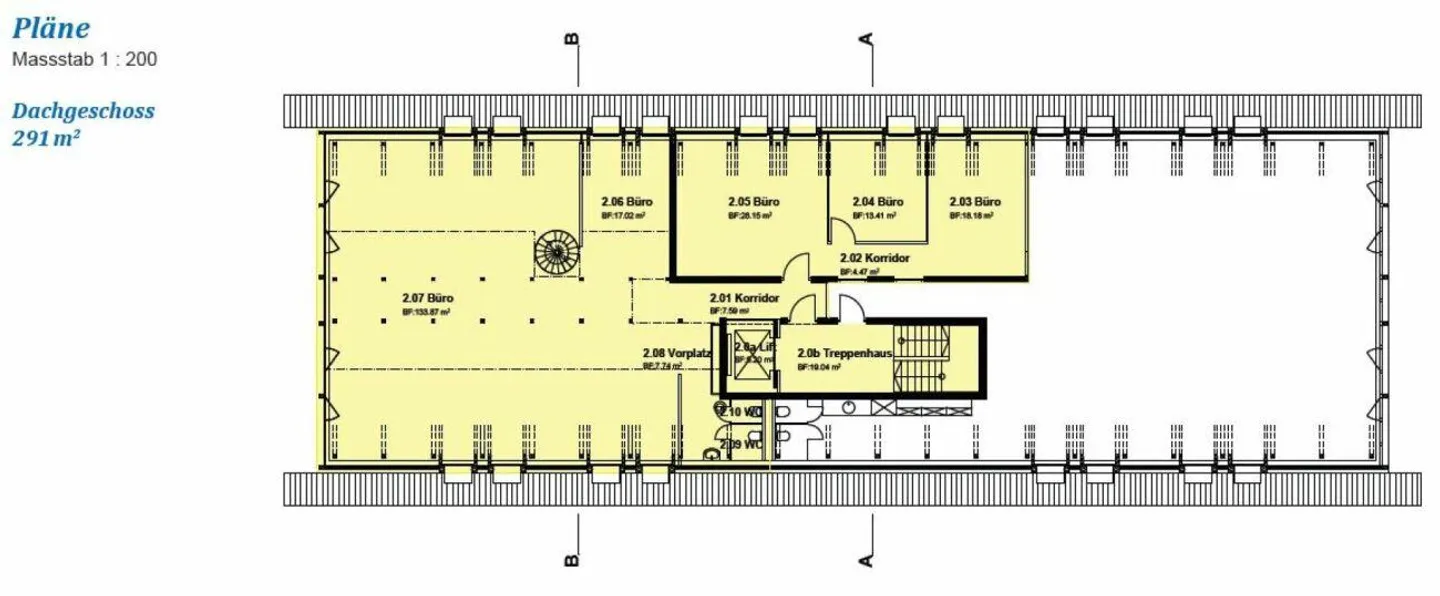
Modernes und offenes Layout
Klimatisierter Komfort
Zugang zum grünen Innenhof
Besichtigung vereinbaren
Besichtigung mit Rutigliano buchen
Schöne, grosszügige büroräumlichkeiten an optimaler lage nähe loryp...
grosszügige, offene und ruhige Büroräumlichkeiten
Die moderne, grosszügige und offene Bürofläche ist nach Vereinbarung Nähe Loryplatz und Fischermätteli-Quartier zu vermieten:
- geeignet für Dienstleister
- ausgebaut und klimatisiert
- Einbauküche
- Lagerraum von 26 m2 kann dazu gemietet werden
ruhige zurückversetzte Lage
Die Liegenschaft ist von der Könizstrasse zurück versetzt und befindet sich auf der einen Seite zu einem Innenhof mit grosszügiger Grünanlage und zur anderen Seite auf die zur Lieg...
Kostenaufstellung
- Nettokosten
- CHF 5’021
- Zusätzliche Kosten
- CHF 750
- Gesamtkosten
- CHF 5’021
Immobiliendetails
- Verfügbar ab
- Nach Vereinbarung
- Baujahr
- 1990
- Renovierungsjahr
- 2016



