1 / 5

Werkstatt mieten - Helvetierstrasse 23, 4106 Therwil

-1. Etage
CHF 410.-
-

Warum Sie diese Immobilie lieben werden

Helles Tageslicht

Fussbodenheizung vorhanden

Gemeinschafts-WC zur Nutzung

Besichtigung vereinbaren

Besichtigung mit Tanja buchen

Tanja Schäfli
Apleona Schweiz AG

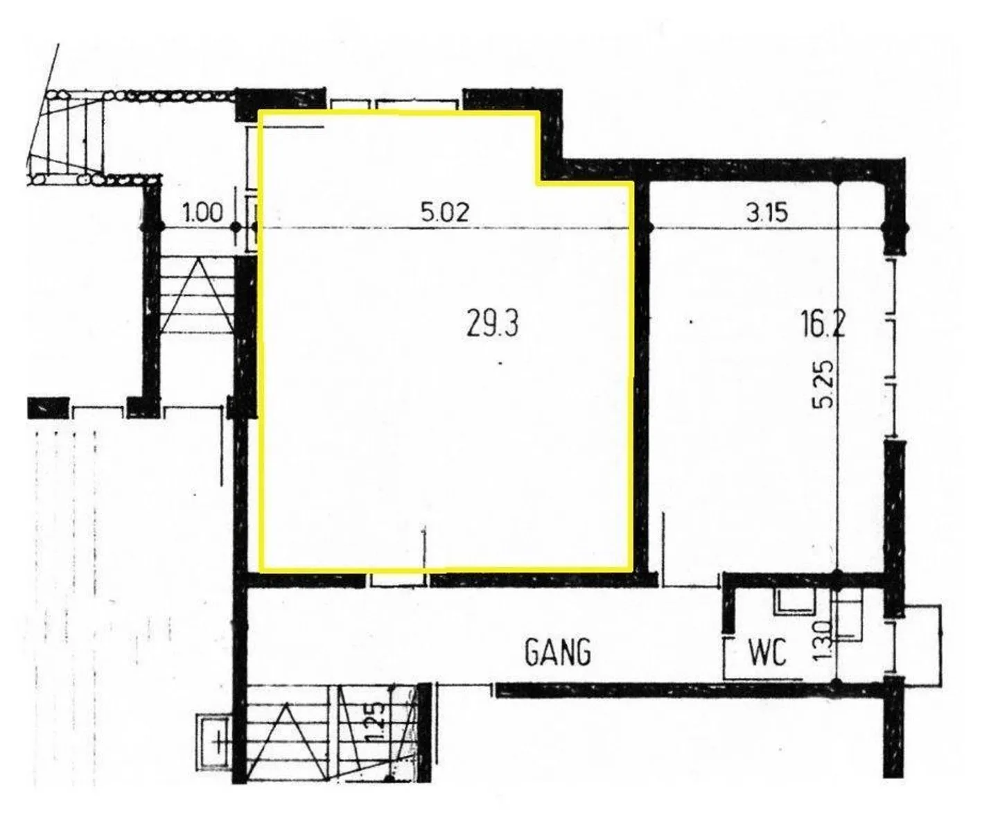
Hobbyraum / büro / atelier

In ruhigem Wohnquartier vermieten wir per 01.10.2025 einen Platz im Untergeschoss zum Arbeiten, Malen, Nähen, Singen oder einem anderen ruhigen Hobby.

Der Raum ist über das Treppenhaus erreichbar, hat Tageslicht, Stromanschluss und Fussbodenheizung. Im Gang steht den Mietern des UG ein WC mit Lavabo zur Mitbenutzung zur Verfügung.

Da sich der Hobbyraum in einem Wohnhaus befindet, sind die üblichen Ruhezeiten entsprechend einzuhalten und Rücksichtnahme auf die Mitmieter wichtig und erforderlich.

ES ...

Immobiliendetails

Verfügbar ab
Nach Vereinbarung

Agentur

Apleona Schweiz AG
Adresse:Basel, Kornhausgasse 7, 4051
Ref: 83694.01.9001
Online seit
18/09/2025
vor 28 Tagen

Standort

Helvetierstrasse 23, 4106 Therwil

Quellen