Gewerbe mieten - Christoph Merian-Ring 23, 4153 Reinach BL
Warum Sie diese Immobilie lieben werden
Heller und beheizter Raum
Flexibel für verschiedene Nutzungen
Direkter Autobahnanschluss
Besichtigung vereinbaren
Besichtigung mit Stöckli buchen
Lager / Atelier / Studio
Lager, Hobbyraum oder doch ein Bandraum - > hier ist alles möglich
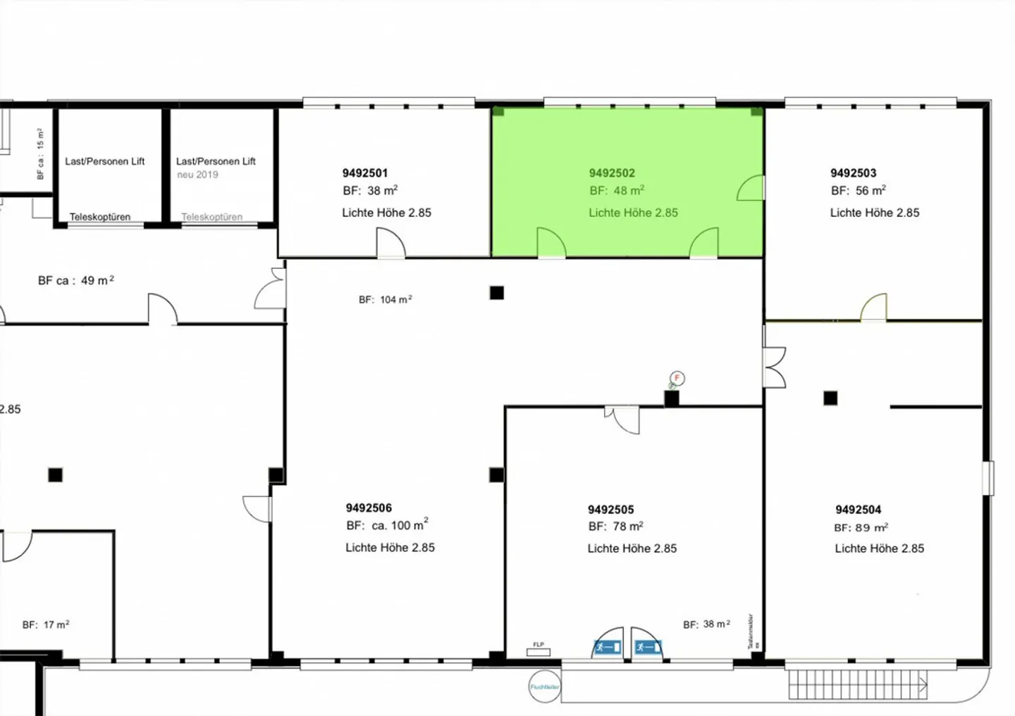
Nach Vereinbarung vermieten wir eine helle und attraktive Gewerbefläche im Industriegebiet Kägen in Reinach. Das Objekt hat folgende Qualitäten:
- Tageslicht und beheizt.
- Perfekt für ein Atelier, Hobbyraum oder Lager
- Toiletten zur Mitbenutzung (Etagenweise).
- Büroflächen im direkt angrenzenden Büroteil des Gebäudes sind dazumietbar (diverse Grössen).
- Anlieferungsrampe mit Tor
- Zwei Warenlifte
- Parkplätze dazumietbar (Da...
Immobiliendetails
- Verfügbar ab
- Nach Vereinbarung


