Bürofläche mieten - Avenue Frédéric-César-De-La-Harpe 22, 1007 Lausanne
Warum Sie diese Immobilie lieben werden
Modernes und helles Umfeld
Anpassbare Layout-Optionen
Strategische Lage in Lausanne
Besichtigung vereinbaren
Besichtigung mit Pour buchen
Privilegierte Lage!
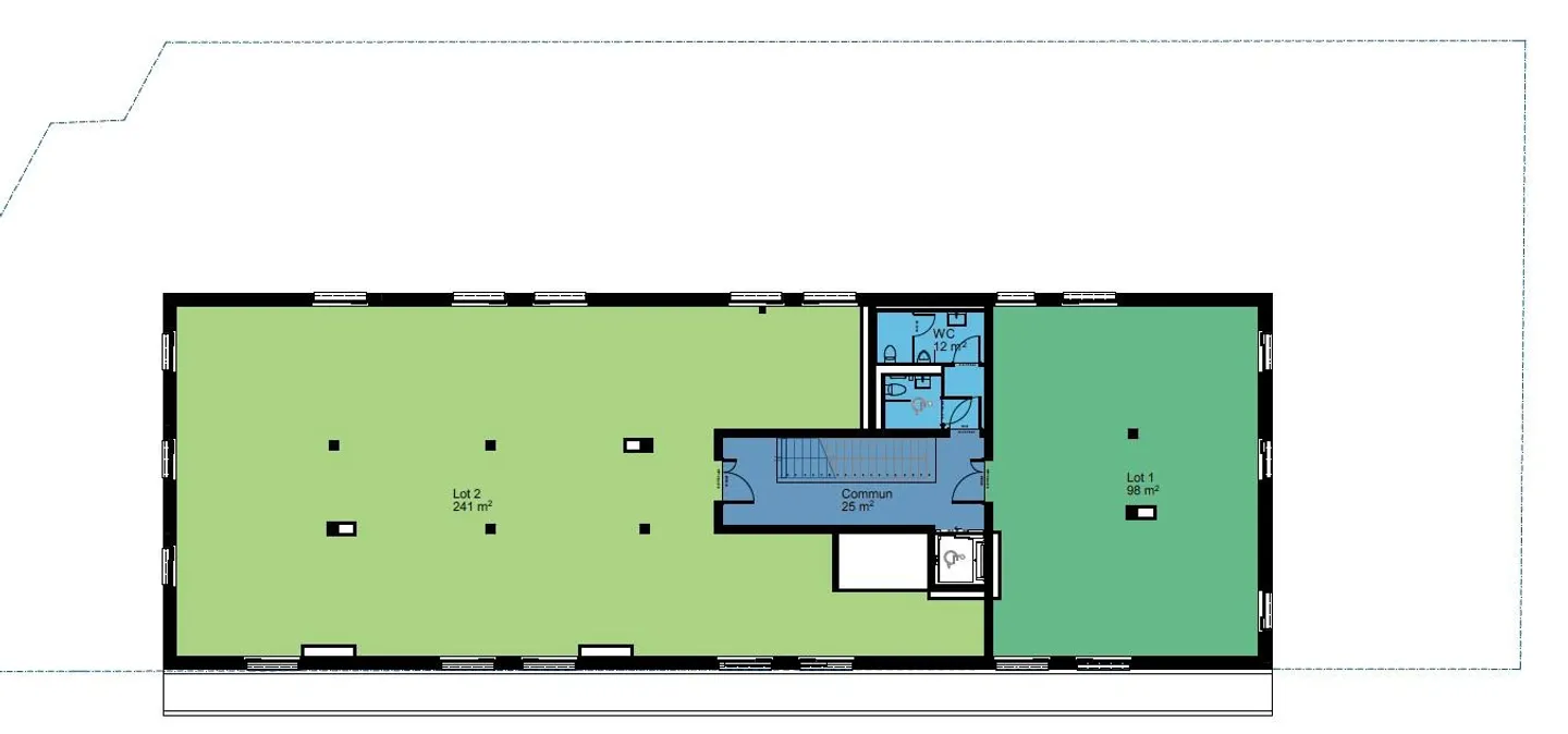
Entdecken Sie das neue Projekt Harpe 22 und gründen Sie Ihr Unternehmen in einem außergewöhnlichen professionellen Umfeld, ideal gelegen im Stadtteil Sous-Gare in Lausanne.Genießen Sie eine moderne und helle Umgebung, die darauf ausgelegt ist, ein dynamisches Arbeitsumfeld in einer privilegierten Gegend zu bieten.Verfügbare Bürofläche:- Los Nr. 1 – 1. Stock - 98m2Mietbedingungen:- Nettomiete: CHF 400.-/m2/Jahr- Nebenkosten und Zusatzkosten: CHF 40.-/m2/JahrDank der Möglichkeit der maßgeschneider...
Immobiliendetails
- Verfügbar ab
- Nach Vereinbarung



