Geschäft mieten - Bahnhofstrasse 21b, 9470 Buchs SG
Warum Sie diese Immobilie lieben werden
Hohe Sichtbarkeit mit großen Fenstern
Zugang von der Fussgängerzone
Zusätzlicher Lagerraum verfügbar
Besichtigung vereinbaren
Besichtigung mit Wincasa buchen
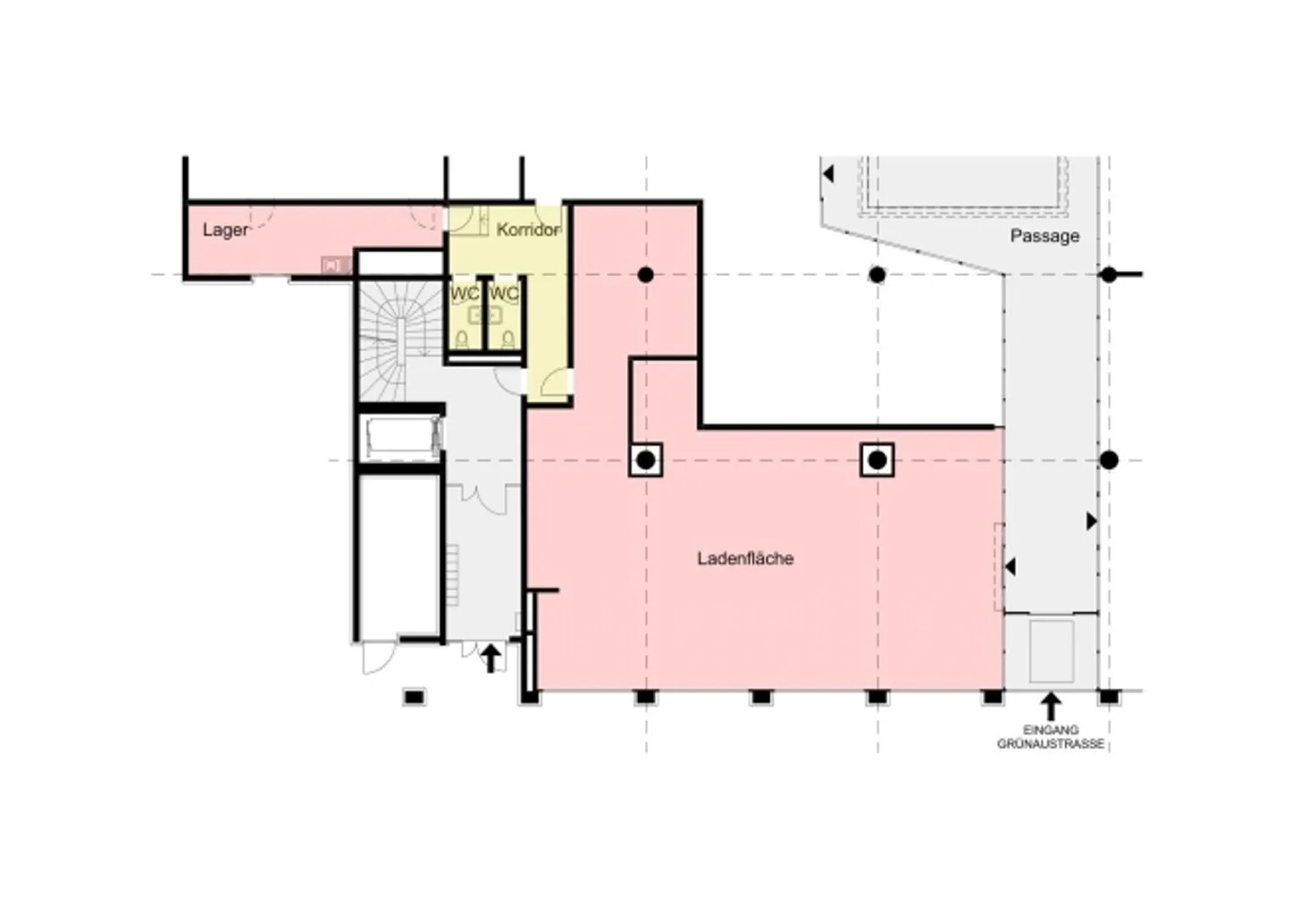
Sind Sie auf der Suche nach einem Ladenlokal im Puls von Buchs? Dann sind Sie hier genau richtig.
- Verkaufsfläche zu attraktiven Konditionen
- Die Liegenschaft befindet sich an top Lage in der Mitte der Bahnhofstrasse
- Zugang zum Objekt von der Fussgängerzone aus durch die überdachte Passage
- An einer Hauptverkehrsachse von Buchs gelegen
- Sehr gut sichtbare Fläche, durch grosse Schaufenster in Richtung Grünaustrasse und innerhalb der Passage
- Öffentliches Parkhaus im UG
- Interessanter Mietermix ...
Immobiliendetails
- Verfügbar ab
- Nach Vereinbarung
- Baujahr
- 1996
- Wohnfläche
- 190 m²
- Nutzfläche
- 190 m²



