Arztpraxis mieten - Zentralstrasse 21, 5610 Wohlen AG
Warum Sie diese Immobilie lieben werden
Helle und ansprechende Räume
Öffentliches Parkhaus nebenan
Zentrale Lage mit Geschäften
Besichtigung vereinbaren
Besichtigung mit Christian buchen
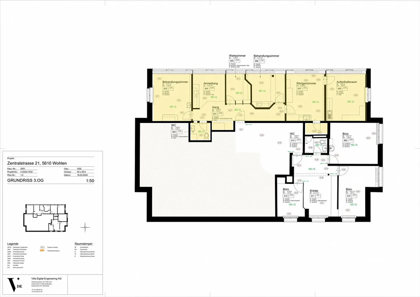
Ihre neue gewerbemietfläche an zentraler lage
Das Wohn- und Geschäftshaus in bester Lage an der Zentralstrasse 21 in Wohlen bietet Ihnen die perfekte Umgebung für Ihre Gewerbefläche.
Nutzen Sie jetzt Ihre Chance und profitieren Sie von der herausragenden zentralen Lage.
Wir vermieten ab sofort eine Gewerbefläche von 116m2 nach Vereinbarung. Zusätzlich besteht die Möglichkeit, eine Teilfläche ab 40m² anzumieten.
Die zu übernehmenden Einrichtungen können in Absprache mit uns definiert werden. Auf Wunsch des neuen Mieters kann die Küche erneue...
Immobiliendetails
- Verfügbar ab
- Nach Vereinbarung
- Baujahr
- 1955
- Renovierungsjahr
- 2014
- Wohnfläche
- 116 m²
- Nutzfläche
- 116 m²



