Bürofläche mieten - Täfernstrasse 2, 5405 Dättwil AG
Warum Sie diese Immobilie lieben werden
Voll ausgestattete Küche
Helle und geräumige Räume
Dreifach verglaste Fenster
Besichtigung vereinbaren
Besichtigung mit maison.work buchen
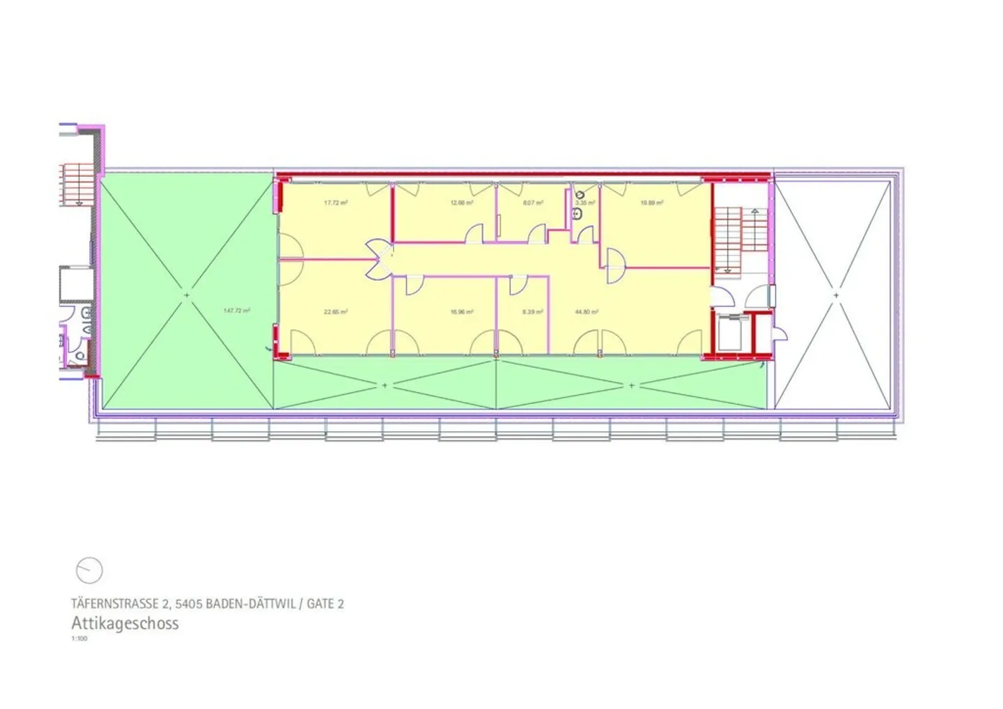
Grosszügige Büroräumlichkeit mit eigener Küche
Ideal aufgeteilte 160m2-Bürofläche sucht ab sofort einen Nachmieter
Private oder geschäftliche Nutzung? Bleibt Ihnen überlassen
Ausstattung:
* Eigene, vollausgestattete Küche
* Gepflegter Teppichboden
* Helle Räumlichkeiten
* Stromanschluss
* Internetanschluss
* Glasfaseranschluss
* Eigene WC-Anlage
* Lift
* 3-fach verglaste Fenster welche für eine ruhige Arbeitsatmosphäre sorgen
Div. Lagerräumlichkeiten zwischen 12m2 und 55m2 können Sie zusätzlich mieten.
H...
Kostenaufstellung
- Nettokosten
- CHF 2’870
- Zusätzliche Kosten
- CHF 200
- Gesamtkosten
- CHF 2’870
Immobiliendetails
- Verfügbar ab
- Nach Vereinbarung
- Wohnfläche
- 160 m²
- Nutzfläche
- 160 m²



