Bürofläche mieten - Marktgasse 2, 8400 Winterthur
Warum Sie diese Immobilie lieben werden
Erstklassige Lage an der Marktgasse
Komplett erneuertes Interieur
Hervorragender ÖV-Anschluss
Besichtigung vereinbaren
Besichtigung mit maison.work buchen
Beste Lage an der Marktgasse
Frisch saniertes Büro an bester Lage in Winterthur
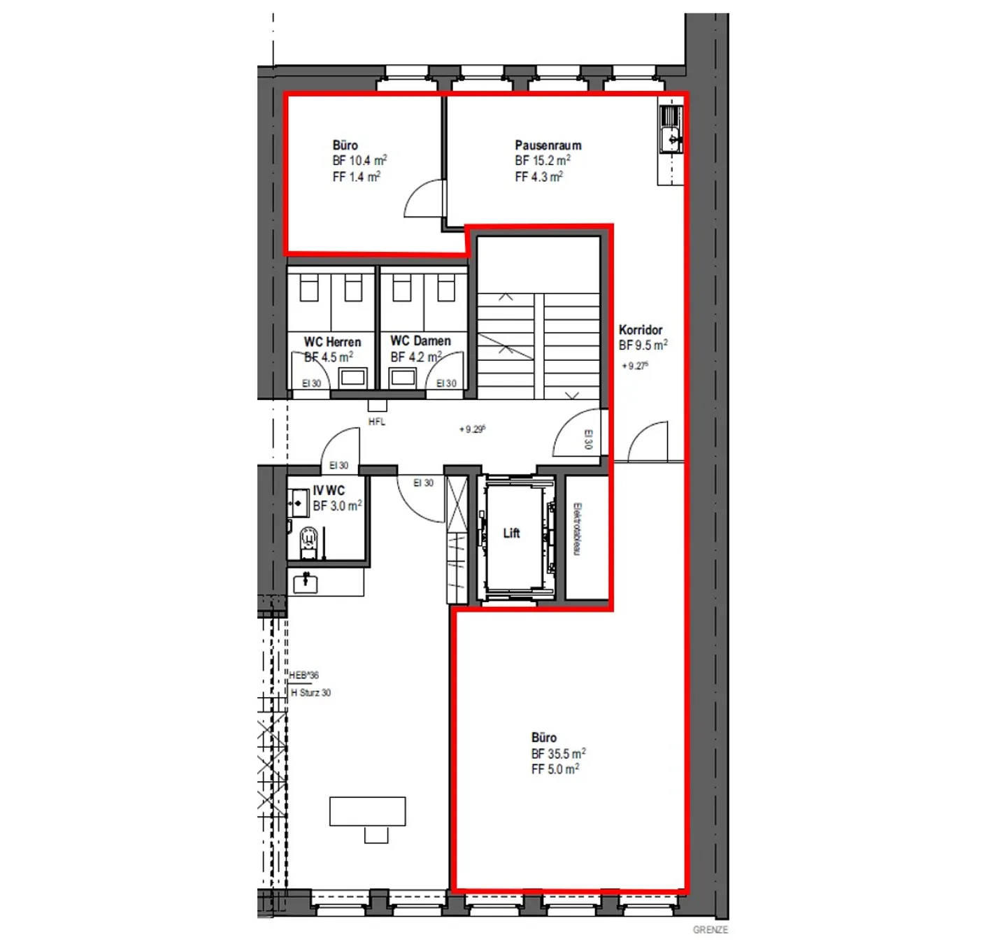
An der Marktgasse 2 in der Winterthurer Altstadt vermieten wir ein Büro mit ca. 70 m² in Top-Passantenlage.
Ein helles, modernes Büro in erstklassiger Lage – ideal für Unternehmen, die gute Erreichbarkeit und Urbanität schätzen.
Das Büro wird komplett erneuert – frisch gestrichen, mit neuem Parkettboden und neuer Teeküche. Die Toiletten befinden sich zur Mitbenutzung im Gang.
Lage & Umgebung:
* Direkt an der Mark...
Immobiliendetails
- Verfügbar ab
- Nach Vereinbarung
- Wohnfläche
- 73 m²
- Nutzfläche
- 73 m²



