Gewerbe mieten - Kottenstrasse 2, 6210 Sursee
Warum Sie diese Immobilie lieben werden
Flexible Raumaufteilung
Hohe Kundenfrequenz
Ausgezeichnete ÖV-Anbindung
Besichtigung vereinbaren
Besichtigung mit Manuel buchen
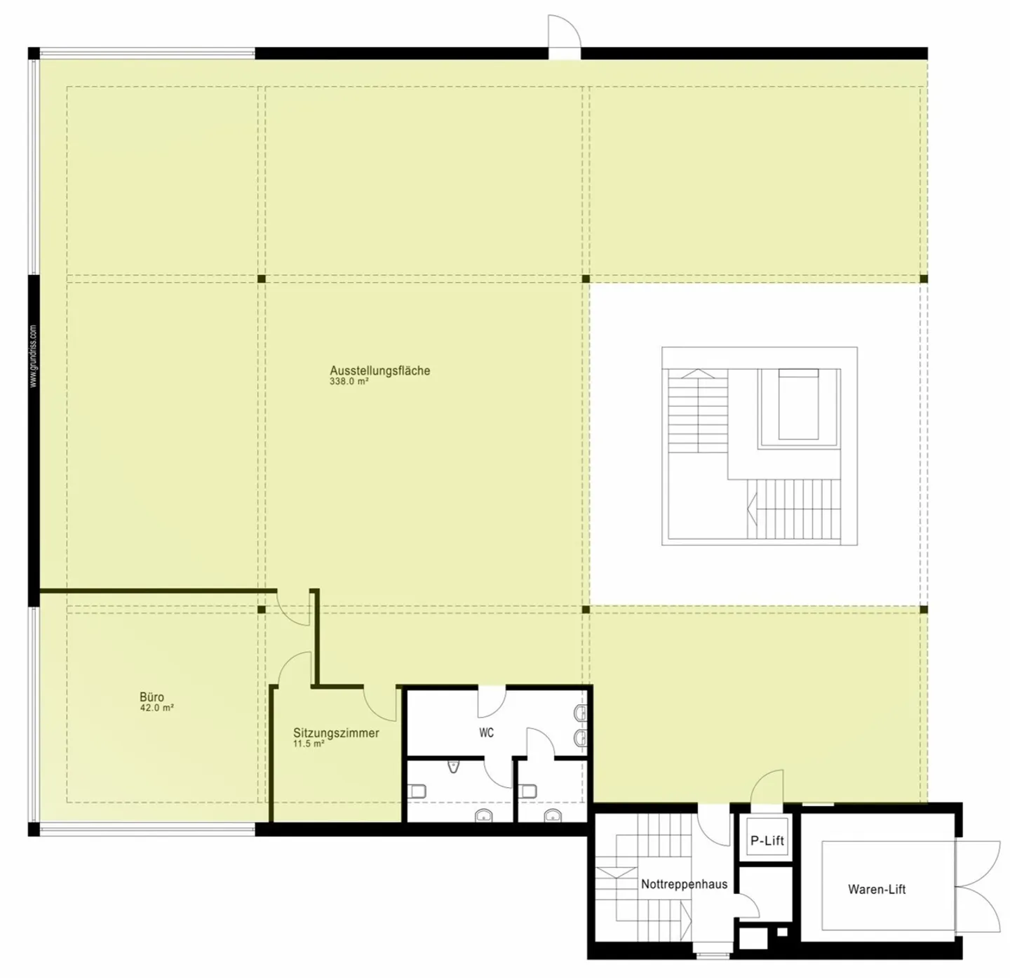
Inspirierend und repräsentativ - ihre ausstellungsfläche
Vielseitige Gewerbefläche an zentraler Lage in Sursee
Diese rund 388 m² grosse Fläche im 4. Obergeschoss des Möbelhauses Ulrich bietet ideale Voraussetzungen für Ihr Unternehmen. Ob als Showroom, Atelier oder Dienstleistungsfläche - hier finden Sie Raum für Ihre Ideen in einem lebendigen Umfeld mit hoher Kundenfrequenz.
Das bietet Ihnen diese Mietfläche:
- Rund 388 m² auf einer Etage
- Personen- und Warenlift für einen komfortablen Zugang
- Lüftungsanlage vorhanden
- Räume flexibel unterteilbar
- Helle...
Kostenaufstellung
- Nettokosten
- CHF 5’173
- Zusätzliche Kosten
- CHF 30
- Gesamtkosten
- CHF 6’143
Immobiliendetails
- Verfügbar ab
- Nach Vereinbarung
- Wohnfläche
- 388 m²
- Nutzfläche
- 388 m²




