Bürofläche mieten - Jöchlerweg 2, 6340 Baar
Warum Sie diese Immobilie lieben werden
Individuell gestaltbarer Innenausbau
Geräumige 3m hohe Decken
Hervorragende Verkehrsanbindung
Besichtigung vereinbaren
Besichtigung mit Andreas buchen
Attraktive Büroräume für Ihr Unternehmen - Flexibler Innenausbau möglich!
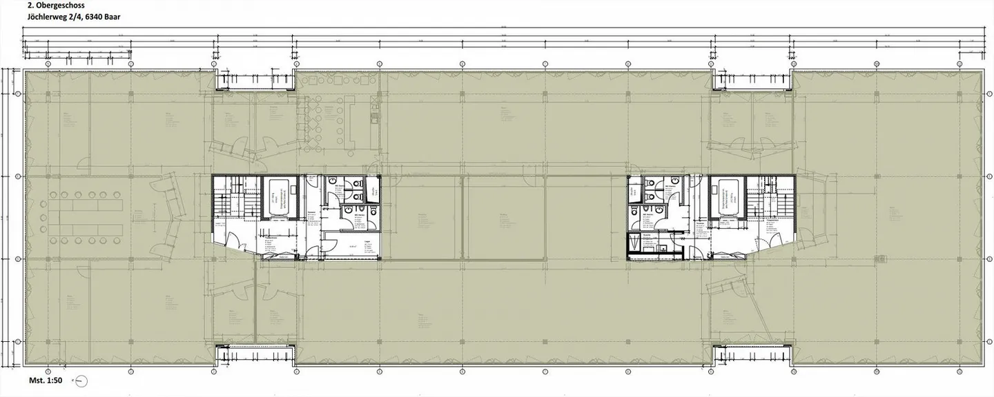
Am Jöchlerweg 2/4 in Baar steht im 2. Obergeschoss eine Bürofläche von 1 296m² zur Miete.
Die sich im Grundausbau befindende Bürofläche bietet Ihnen maximale Flexibilität für eine neue Innenraumgestaltung. Von neuen Bodenbelägen bis zu flexibel wählbaren Raumaufteilungen stehen Ihnen alle Möglichkeiten offen.
Durch die grosszügigen Raumhöhen von 3 Metern in Kombination mit den lichtdurchfluteten Räumen wird ein offenes und inspirierendes Arbeitsumfeld geschaffen. Die Mietfläche ist über zwei Tr...
Immobiliendetails
- Verfügbar ab
- 01.01.2026
- Baujahr
- 1994
- Wohnfläche
- 1296 m²
- Nutzfläche
- 1296 m²



