Arztpraxis mieten - Fritz-Käser-Strasse 2, 4562 Biberist
Warum Sie diese Immobilie lieben werden
Hohe Kundenfrequenz
Gute ÖV-Anbindung
Parkmöglichkeiten in der Nähe
Besichtigung vereinbaren
Besichtigung mit Kosovare buchen
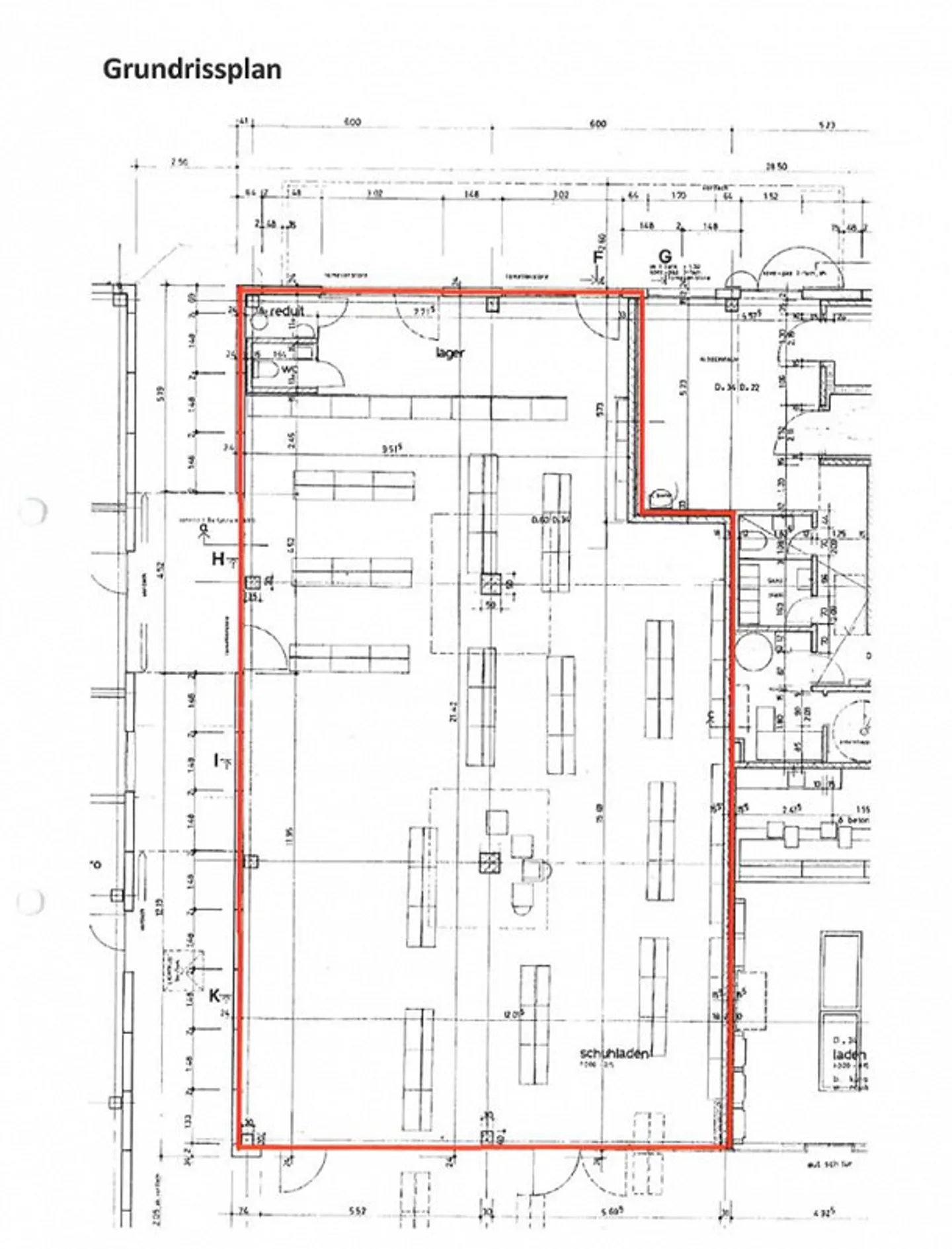
Perfekte räumlichkeiten für physiotherapie-praxis in biberist
Wir vermieten an bester Lager in Biberist eine vielseitig nutzbare Gewerbefläche, die sich ideal für eine Physiotherapie-Praxis eignet.
Highlights:
* Lage: direkt neben Denner mit hoher Kundenfrequenz
* Gute Erreichbarkeit mit ÖV und Auto
* Parkmöglichkeiten für Kunden in unmittelbarer Nähe
* Ausgebaute sanitäre Anlagen mit Toiletten zur Mitbenutzung
* Anlieferungsmöglichkeit
Die zentrale Lage bietet ideale Voraussetzungen, um Patientinnen und Patienten optimal zu betreuen und Ihre Praxis erfolgreich z...
Kostenaufstellung
- Nettokosten
- CHF 2’017
- Zusätzliche Kosten
- CHF 35
- Gesamtkosten
- CHF 2’017
Immobiliendetails
- Verfügbar ab
- Nach Vereinbarung
- Wohnfläche
- 103 m²
- Nutzfläche
- 103 m²



