1 / 7

Bürofläche mieten - Marktgasse 2-4, 8400 Winterthur

Preis auf Anfrage
-

Warum Sie diese Immobilie lieben werden

Frisch renovierter Raum

Helles und modernes Design

Ausgezeichnete ÖV-Anbindung

Besichtigung vereinbaren

Besichtigung buchen

Colliers Switzerland AG

«beste lage an der marktgasse!»

Beste Lage an der Marktgasse!

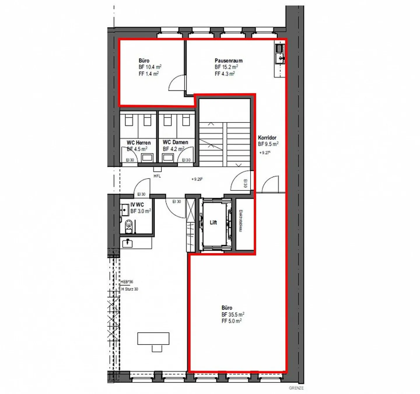
Frisch saniertes Büro an bester Lage in Winterthur

An der Marktgasse 2 in der Winterthurer Altstadt vermieten wir ein Büro mit ca. 70 m² in Top-Passantenlage.

Ein helles, modernes Büro in erstklassiger Lage – ideal für Unternehmen, die gute Erreichbarkeit und Urbanität schätzen.

Das Büro wird komplett erneuert – frisch gestrichen, mit neuem Bodenbelag und neuer Teeküche. Die Toiletten befinden sich zur Mitbenutzung im Gang.

Lage & Umgebung:

* Direkt an der Marktgasse, ...

Immobiliendetails

Verfügbar ab
Nach Vereinbarung

Agentur

Colliers Switzerland AG

Standort

Marktgasse 2-4, 8400 Winterthur

Quellen