Bürofläche mieten - Scheunenstrasse 19, 3400 Burgdorf
Warum Sie diese Immobilie lieben werden
Helle offene Räume
Eigene WC-Anlage und Dusche
Ruhiges und gepflegtes Gebäude
Besichtigung vereinbaren
Besichtigung mit Sahra buchen
Attraktives büro/atelier im dachgeschoss
Objektbeschreibung
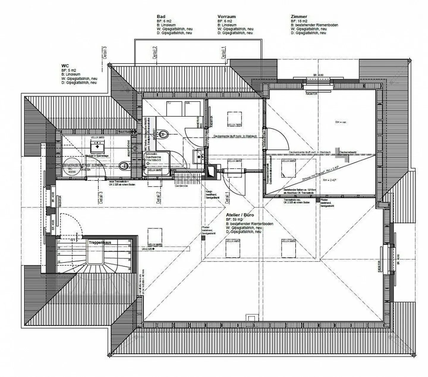
An zentraler Lage in Burgdorf vermieten wir ein grosszügiges Büro mit 106 qm im 2. Obergeschoss (Dachgeschoss) eines gepflegten Geschäftshauses. Die Fläche bietet helle, offen gestaltete Räume mit eigener WC-Anlage und Dusche, ideal für Unternehmen, die Wert auf Komfort und Flexibilität legen.
Highlights
106 qm im 2. OG (Dachgeschoss)
Eigene WC-Anlage und Dusche im Büro integriert
Lichtdurchflutete Räume mit angenehmem Raumklima
Auf Wunsch feste Parkplätze möglich
Ruhiges Umfeld un...
Kostenaufstellung
- Nettokosten
- CHF 1’618
- Zusätzliche Kosten
- CHF 118
- Gesamtkosten
- CHF 1’618
Immobiliendetails
- Verfügbar ab
- Nach Vereinbarung



