Lagerraum mieten - Murgtalstrasse 18, 9542 Münchwilen TG
Warum Sie diese Immobilie lieben werden
Helle, funktionale Büros
Direkter Zugang über Warenlift
26 Aussenparkplätze vorhanden
Besichtigung vereinbaren
Besichtigung mit Beer buchen
Repräsentative büro- & lagerfläche per sofort zu vermieten
Per sofort oder nach Vereinbarung vermieten wir eine attraktive Gewerbefläche mit grosszügiger Büroeinheit, praktischem Lager und zahlreichen Aussenparkplätzen. Die Liegenschaft bietet ideale Voraussetzungen für Unternehmen mit kombinierter Büro- und Lagerlogistik.
Bürofläche im EG:
- ca. 301m2 Bürofläche
- Helle, funktionale Büroräume
-Preis: CHF 130.-/m2 p.a. (Netto, exkl. NK)
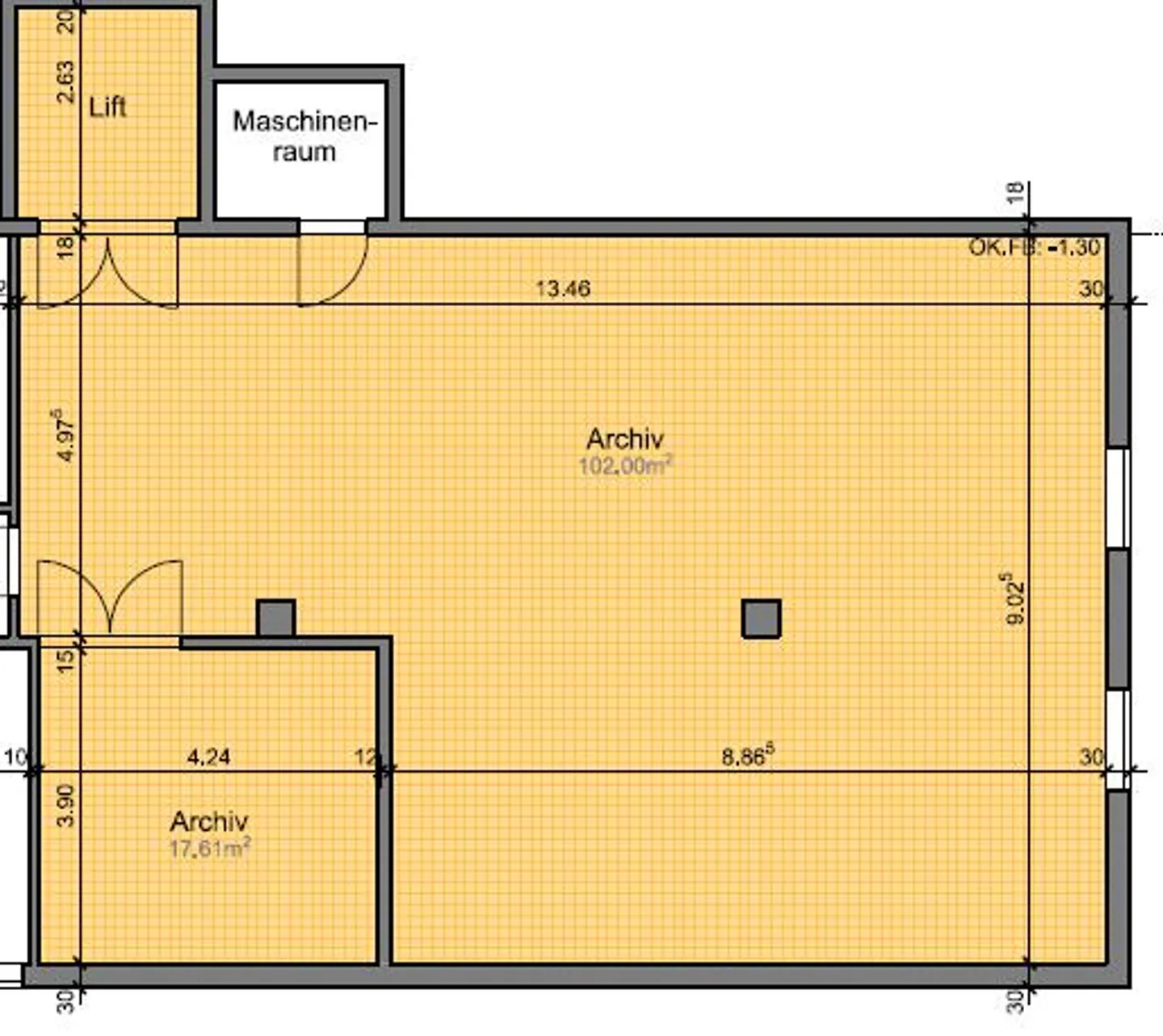
Lagerfläche im UG:
- ca. 120m2 Lagerfläche
- Direkter Zugang über Warenlift
-Preis: CHF 80.-/m2 p.a. (Netto, exkl. NK)
Die ...
Immobiliendetails
- Verfügbar ab
- Nach Vereinbarung



