Werkstatt mieten - Route Des Avouillons 17a, 1196 Gland
Warum Sie diese Immobilie lieben werden
Modernes Gebäudedesign
Gemeinsame Kitchenette
Schneller Zugang zu Verkehrsmitteln
Besichtigung vereinbaren
Besichtigung mit Alan buchen
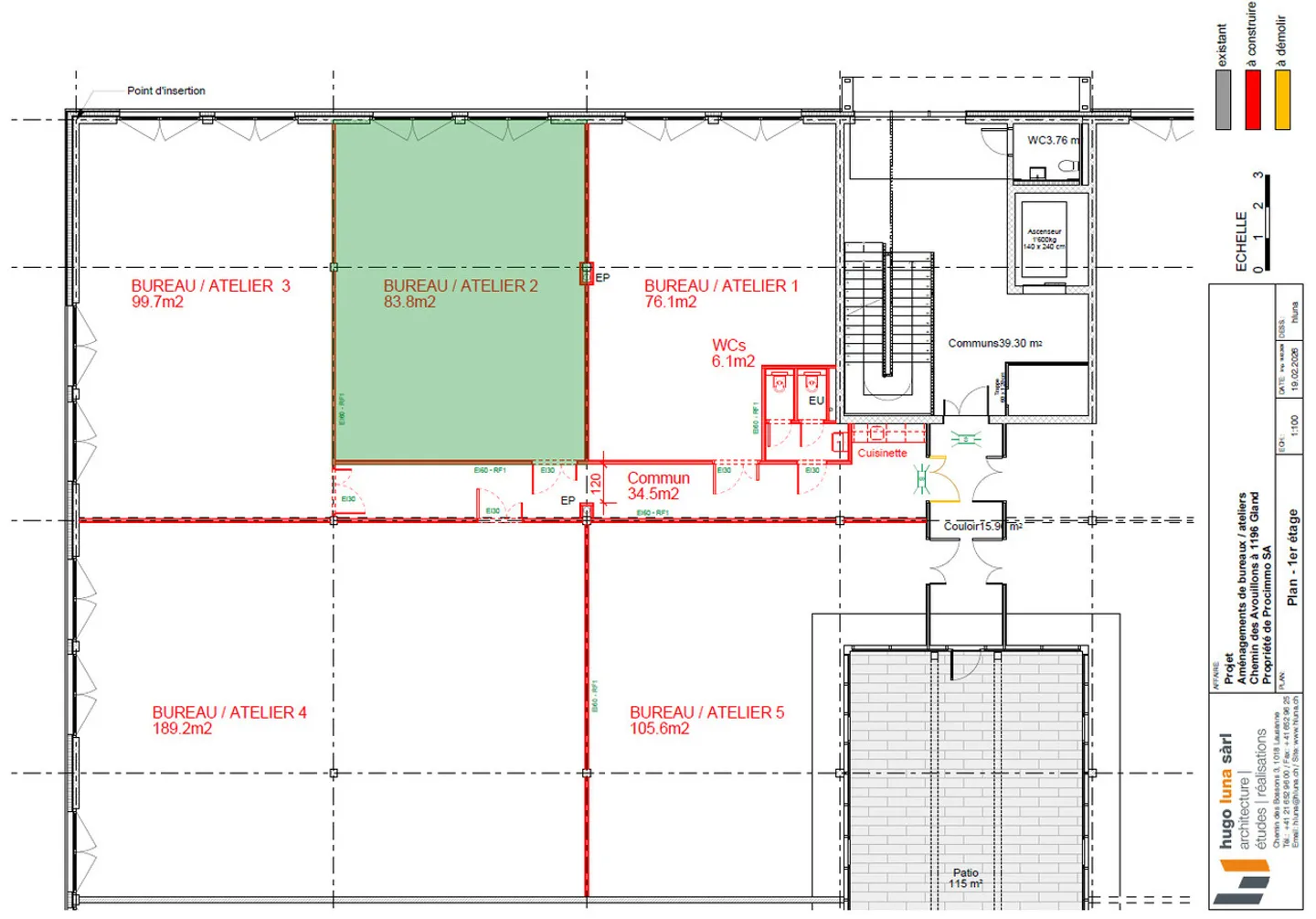
SPARK - 83,8 m2 - Atelier Plug & Play in Gland
Konzipiert, um den Bedürfnissen von Unternehmen und Selbstständigen zu entsprechen, die einen funktionalen und flexiblen Raum suchen, bietet dieser 83,8 m² große Plug & Play-Atelier eine praktische und professionelle Arbeitsumgebung.
In einem modernen Gebäude gelegen, ermöglicht der Raum eine schnelle Installation und eine große Flexibilität bei der Nutzung, ideal für leichte Handwerks-, Kreativ- oder Büroaktivitäten.
Die Toiletten und die Kitchenette stehen gemeinsam zur Verfügung, bieten d...
Immobiliendetails
- Verfügbar ab
- Nach Vereinbarung
- Baujahr
- 2024
- Wohnfläche
- 83 m²
- Nutzfläche
- 83 m²



