Bürofläche mieten - Industriestrasse 160, 8957 Spreitenbach
Warum Sie diese Immobilie lieben werden
Hochwertig, sofort nutzbar
Helle Räume mit Terrasse
Zentrale Lage, gute Erreichbarkeit
Besichtigung vereinbaren
Besichtigung mit Timon buchen
Moderne büro-/praxisfläche mit terrasse - top-lage direkt beim shoppi tivoli
Ausgebaut | Modern | Zentral
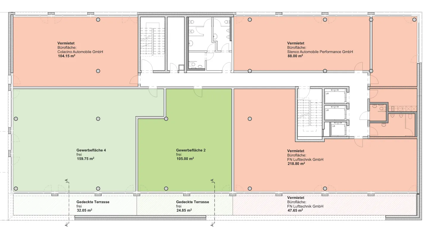
Die Liegenschaft an der Industriestrasse 160 in Spreitenbach bietet hochwertig ausgebaute, sofort bezugsbereite Flächen, die sich ideal für Büro- oder Praxisnutzungen eignen. Mit zentraler Lage, bester Erreichbarkeit und moderner Ausstattung finden Unternehmen hier den perfekten Standort.
Verfügbare Flächen
* 105 m² inkl. 25 m² Terrasse- CHF 2'100.- Nettomiete zzgl. CHF 350.- NK & MwSt.
* 160 m² inkl. 32 m² Terrasse- CHF 3'200.- Nettomiete zzgl. CHF 535.- NK & Mw...
Kostenaufstellung
- Nettokosten
- CHF 3’735
- Zusätzliche Kosten
- CHF 535
- Gesamtkosten
- CHF 3’735
Immobiliendetails
- Verfügbar ab
- Nach Vereinbarung
- Baujahr
- 2025
- Wohnfläche
- 160 m²
- Nutzfläche
- 160 m²


