Bürofläche mieten - Täfernstrasse 16, 5405 Dättwil AG
Warum Sie diese Immobilie lieben werden
Modernes Architekture-Design
Flexible Büroanordnungen
E-Parkplätze vor Ort verfügbar
Besichtigung vereinbaren
Besichtigung buchen
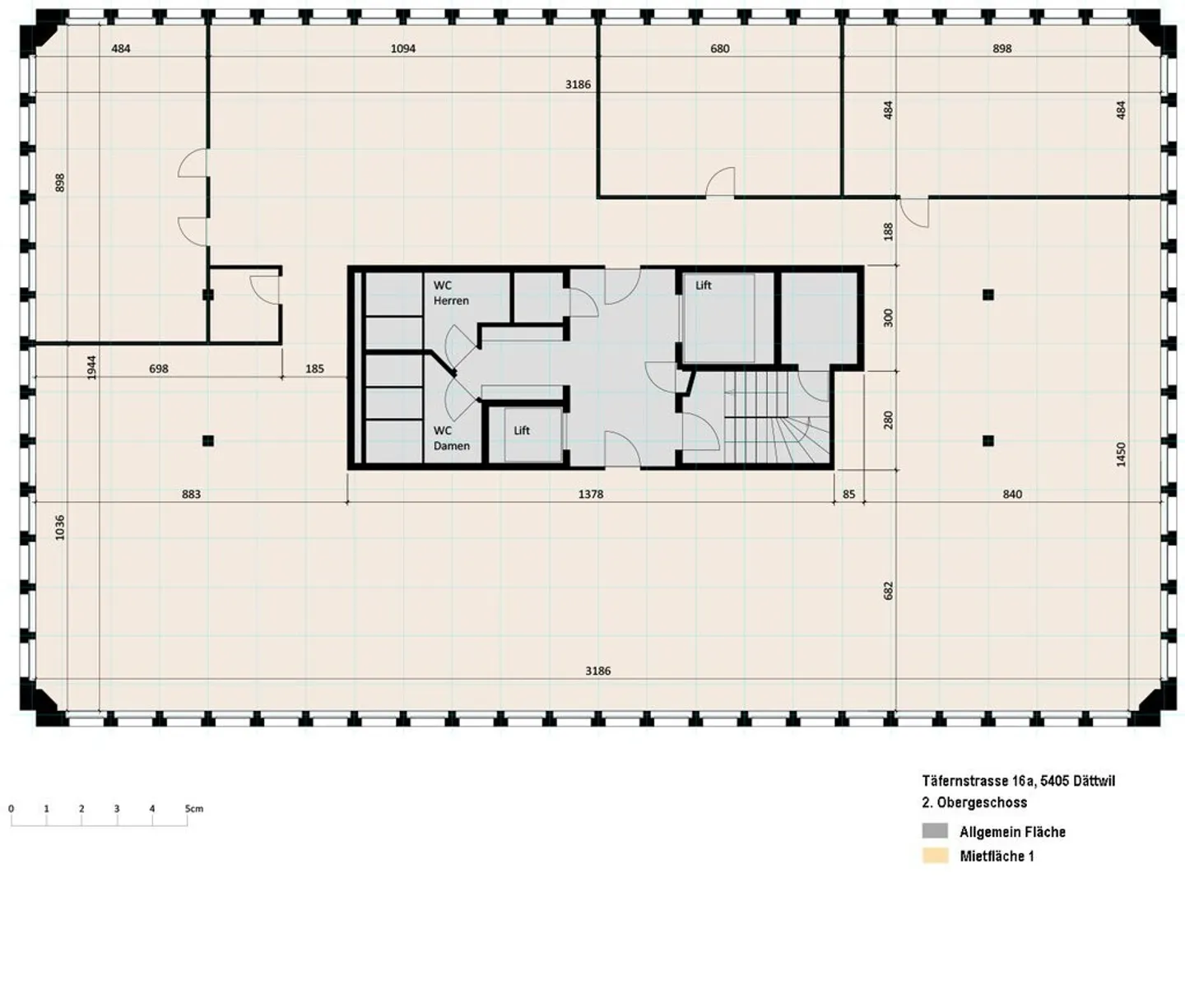
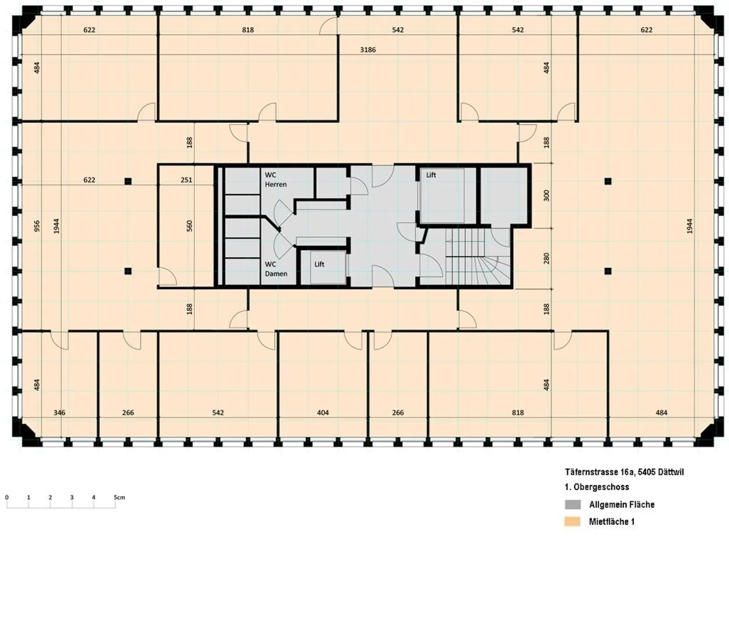
130 m2 - 1'100 m2 - büroräumlichkeiten im industriegebiet täfern
Per sofort oder nach Vereinbarung vermieten wir div. Büroräumlichkeiten zwischen 130 m2 - 1'100 m2 Nutzfläche (Büro/Praxis).
Lage: Das Bürogebäude befindet sich im Industriegebiet Täfern in Baden-Dättwil.
Architektur: Das Gebäude hat ein schönes Erscheinungsbild, mit hinterlüfteter Fassade aus weissen Keramikplatten.
Innenausbau: Die Büros sind ausgebaut und mit individuell verschiebbaren Wänden ausgestattet. Die Räumlichkeiten können auch unterteilt werden. WC-Anlagen befinden sich im Eingang...
Immobiliendetails
- Verfügbar ab
- 09.11.2025
- Baujahr
- 1988
- Wohnfläche
- 100 m²
- Nutzfläche
- 100 m²



