Gewerbe mieten - Rue Ami- Lévrier 15, 1201 Genève
Warum Sie diese Immobilie lieben werden
Atemberaubender Seeblick
Hochwertiges Gebäude
Voll ausgestattete Küche
Besichtigung vereinbaren
Besichtigung buchen
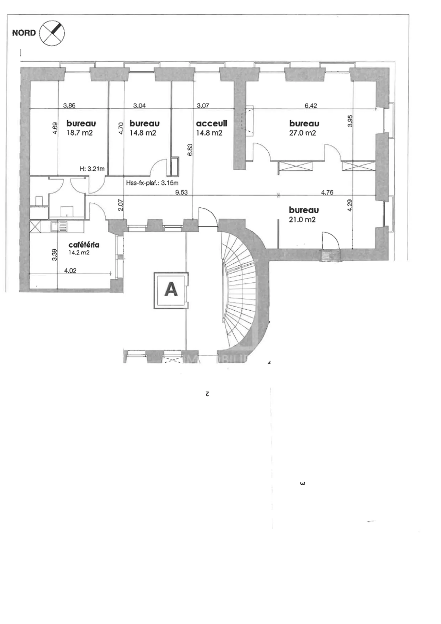
Büros von ca. 159 m² im 1. Stock
GENF-Viertel Jardin des Alpes / Stadtzentrum, mit ausgezeichneter Erreichbarkeit, in einem Luxusgebäude mit Blick auf die Wasserfontäne, nur wenige Schritte vom Bahnhof, den großen Hotels und dem See entfernt.
Wir bieten Ihnen eine Fläche von ca. 159 m² zur Miete an.
Diese Büros befinden sich im 1. Stock eines schönen Haussmann-Gebäudes und bieten somit einen Blick auf den See.
Sie verteilen sich wie folgt:
- 4 Büros
- 1 Open-Space oder eine Rezeption
- 1 WC
- 1 eingerichtete, ausgestattete Küche
- A...
Kostenaufstellung
- Nettokosten
- CHF 6’900
- Zusätzliche Kosten
- CHF 230
- Gesamtkosten
- CHF 6’900
Immobiliendetails
- Verfügbar ab
- Nach Vereinbarung



