Bürofläche mieten - Route Des Avouillons 15, 1196 Gland
Warum Sie diese Immobilie lieben werden
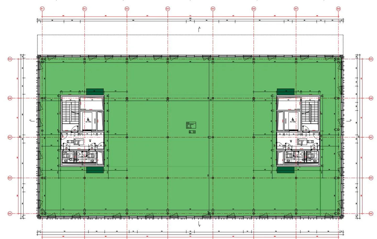
Flexibles Layout von 1'077 m²
Ökologisches Minergie-Gebäude
Direkter Zugang mit Lastenaufzügen
Besichtigung vereinbaren
Besichtigung mit Jean-luc buchen
Büro
Les Avouillons - Gland: Moderne und modulare Flächen im 1. Stock von 1.077 m² in einem Neubau
Strategische Lagen, unvergleichliche Flexibilität und ökologisches Engagement: Entdecken Sie unser neues Angebot an Mietflächen in einem modernen und hochwertigen Bau in Gland!
Stellen Sie sich ein sich entwickelndes Gebäude vor, das vollständig an Ihre Bedürfnisse angepasst ist. Mit einer Fläche von 1.077 m² im 1. Stock bietet Ihnen dieses Premium-Gebäude völlige Freiheit, Ihren Arbeitsplatz perfekt nach...
Immobiliendetails
- Verfügbar ab
- Nach Vereinbarung
- Wohnfläche
- 1077 m²



