Bürofläche mieten - Brunaustrasse 15, 8002 Zürich
Warum Sie diese Immobilie lieben werden
Teppichboden im ganzen Büro
Praktische Teeküche
Nahe öffentlicher Verkehrsmittel
Besichtigung vereinbaren
Besichtigung buchen
«büro an bester lage zu vermieten (befristet bis 30.09.2030)»
Büro an bester Lage zu vermieten (befristet bis 30.09.2030)
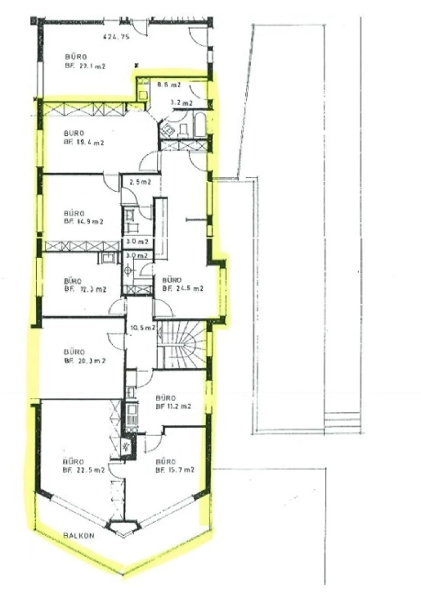
Wir vermieten per sofort oder nach Vereinbarung ein Büro in der Nähe des Bahnhofs Enge.
Das Büro verfügt über folgende Eigenschaften:
* Teppichboden in ganzem Büro
* Teeküche
* Badezimmer
* Einbauschrank
Das Büro ist befristet bis 30.09.2030.
Sämtliche Einkaufsmöglichkeiten, Dienstleister und Schulen befinden sich in unmittelbarer Nähe. Zudem ist die Tramstation nur 3 Gehminuten von der Liegenschaft entfernt.
Falls wir Ihr Interesse geweckt habe...
Kostenaufstellung
- Nettokosten
- CHF 4’310
- Zusätzliche Kosten
- CHF 310
- Gesamtkosten
- CHF 4’310
Immobiliendetails
- Verfügbar ab
- Nach Vereinbarung



