Werkstatt mieten - Lächlerstrasse 14, 8634 Hombrechtikon
Warum Sie diese Immobilie lieben werden
Ideal für kreative Projekte
Geräumiger 24 m² Bereich
Praktische Lage
Besichtigung vereinbaren
Besichtigung mit Rosa buchen
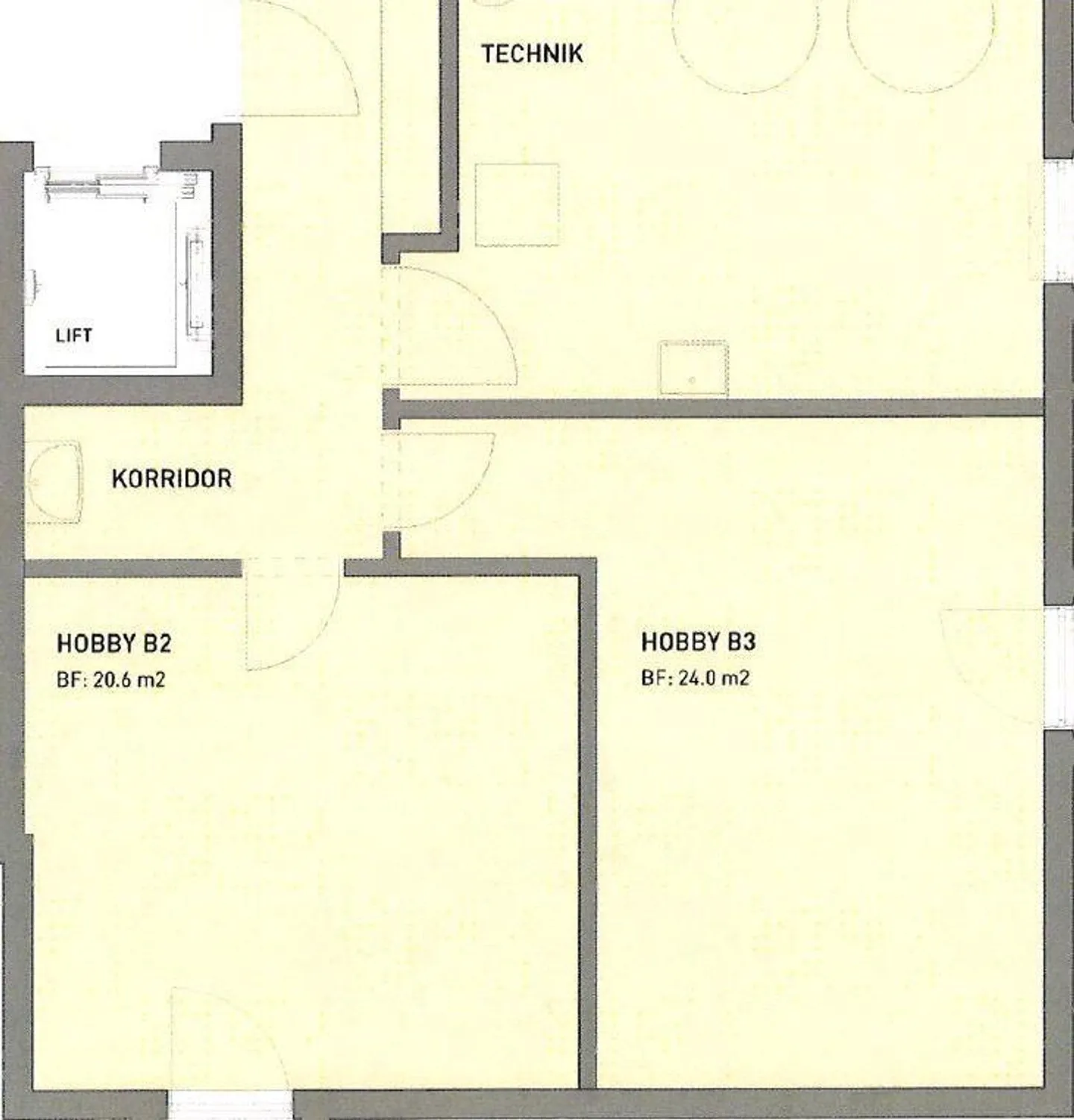
Hobbyraum in Hombrechtikon
Per 1. Juni 2026 oder nach Vereinbarung vermieten wir einen Lager-/Bastelraum (B3) mit 24 m² an der Lächlerstrasse 14 in Hombrechtikon.
Für Fragen stehen wir Ihnen gerne zur Verfügung.
Immobiliendetails
- Verfügbar ab
- Nach Vereinbarung



