Bürofläche mieten - Dammstrasse 14, 8810 Horgen
Warum Sie diese Immobilie lieben werden
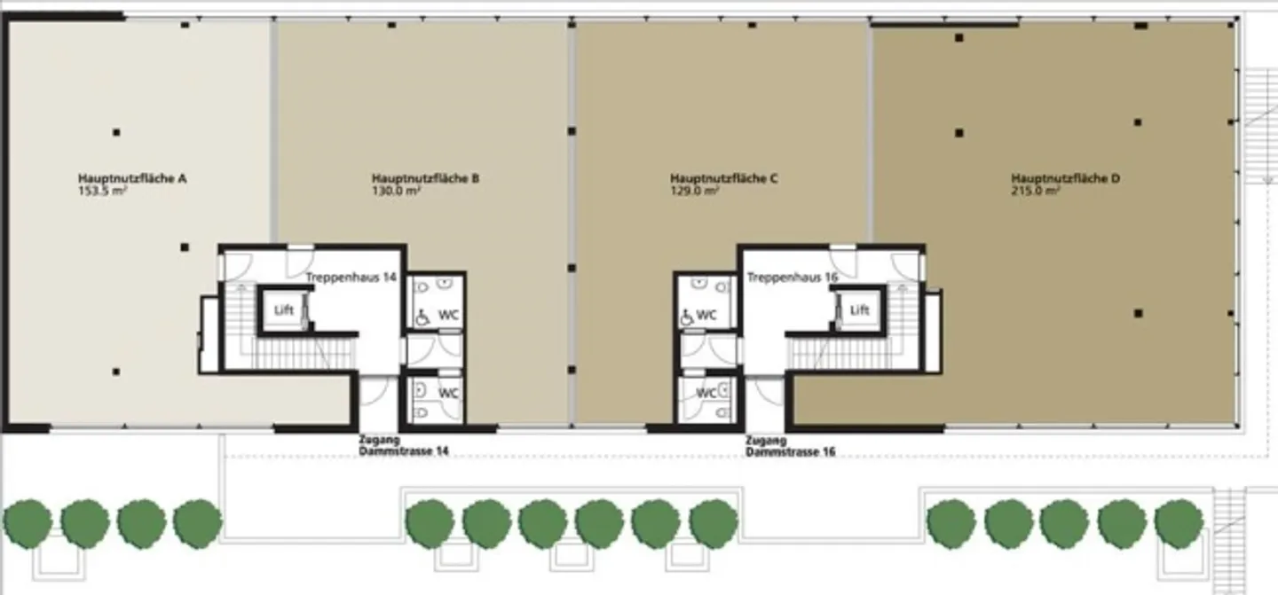
Flexible Raumgrössen verfügbar
In der Nähe des Bahnhofs
Parkmöglichkeiten vorhanden
Besichtigung vereinbaren
Besichtigung mit Wincasa buchen
- Gebäude aus 2012
- Verschiedene Raumgrössen vorhanden: 130m2 und 154 m2
- Die Räume können auch kombiniert werden
- Wird im Rohausbau vermietet
- Mietzins netto CHF 203.-/m2/Jahr
- Nebenkosten CHF 30.-/m2/Jahr
- Separates Damen und Herren WC
- Küchenanschluss vorhanden
- Personenlift
- Lagerräume im 2.UG kann dazu gemietet werden
- Bahnhof in unmittelbarer Nähe
- Autobahnanschluss innert weniger Minuten erreichbar
- Einstellplätze zu CHF 200.00/Monat oder Abstellplätze zu CHF 110.-/Monat stehen zur Verfüg...
Immobiliendetails
- Verfügbar ab
- Nach Vereinbarung
- Baujahr
- 2012
- Wohnfläche
- 154 m²
- Nutzfläche
- 154 m²



