Bürofläche mieten - Alpenstrasse 14, 6300 Zug
Warum Sie diese Immobilie lieben werden
Ideal für kreative Unternehmen
2 Min. zu Fuss zum Bahnhof
Ausstattete Teeküche vorhanden
Besichtigung vereinbaren
Besichtigung mit Katarina buchen
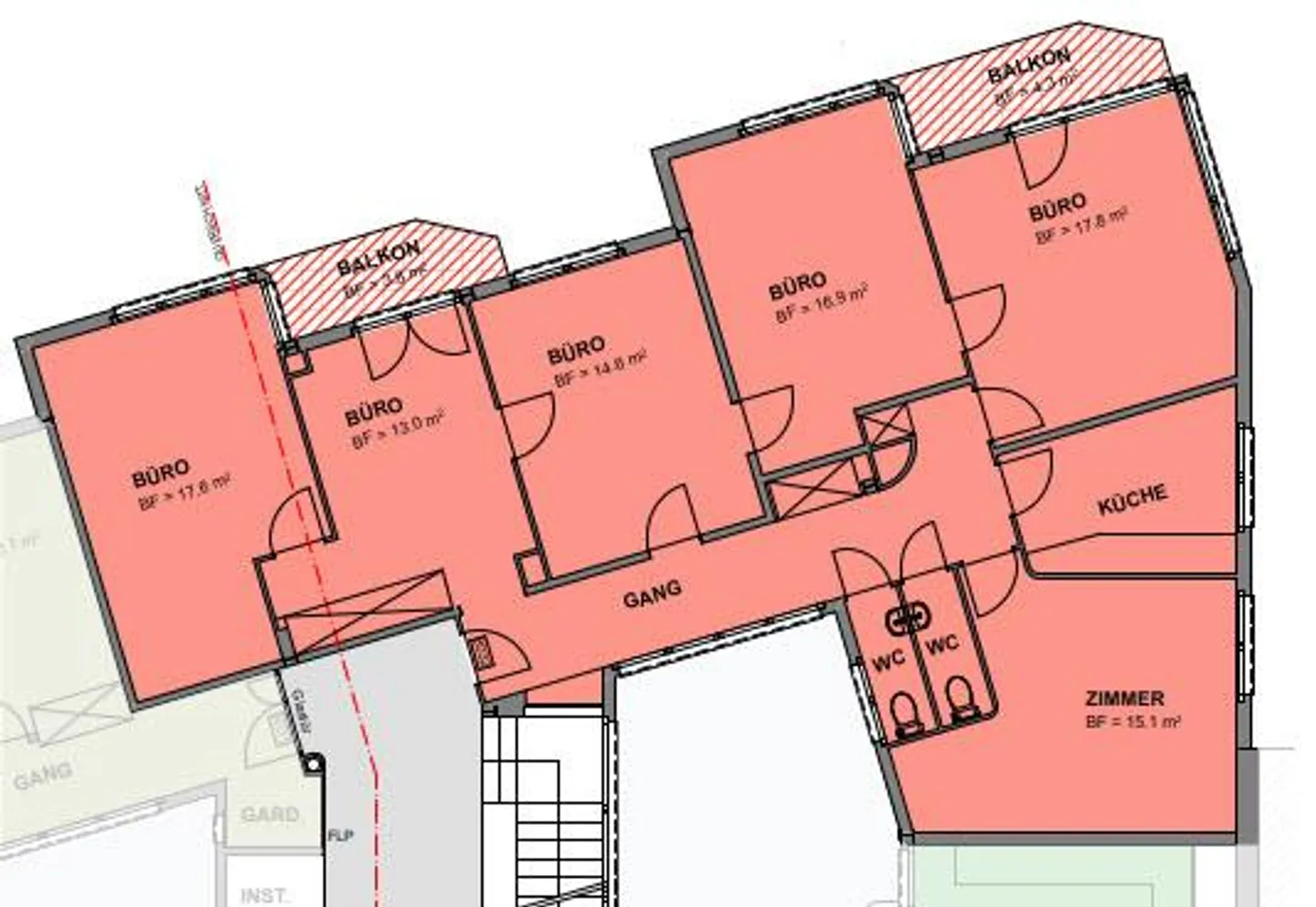
123 m2 Bürofläche im Herzen der Stadt Zug zu vermieten
Gewerberaum zu vermieten – zentral gelegen
Die Liegenschaft verfügt über einen Lift und ist in 2 Gehminuten vom Bahnhof Zug erreichbar.
Details:
- Lage: Zentrale, gut erreichbare Umgebung
- Räume: ideal für Büros oder Praxisräume
- Ausstattung: Teeküche + Toilette
- Parkplätze: Leider aktuell keine Parkmöglichkeiten vorhanden
Die Räume eignen sich hervorragend für kreative Köpfe, Dienstleister oder kleine Unternehmen, die einen zentralen Standort suchen.
Der Preis ist auf Anfrage.
Wir freuen uns auf ...
Immobiliendetails
- Verfügbar ab
- Nach Vereinbarung
- Baujahr
- 1934



