Industrieimmobilie mieten - 1227 Carouge GE
Warum Sie diese Immobilie lieben werden
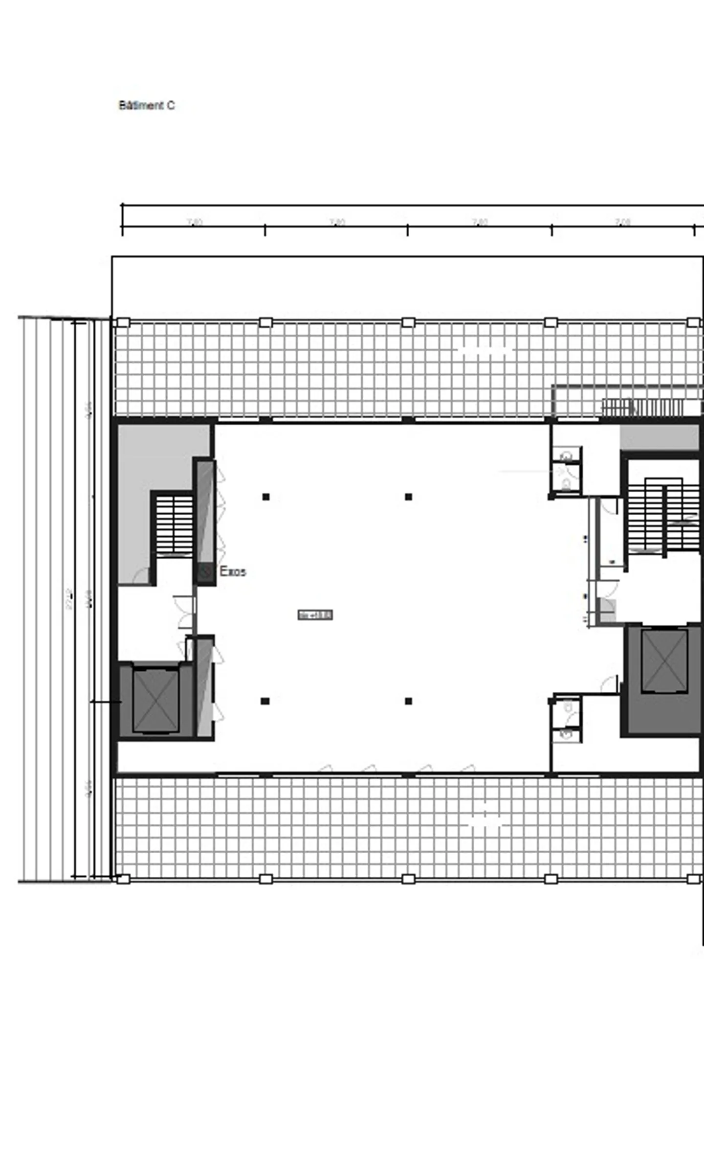
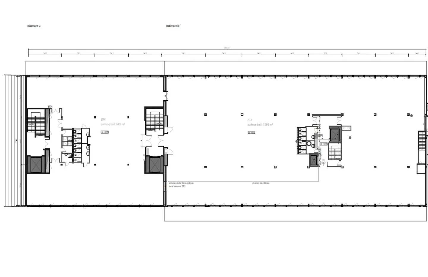
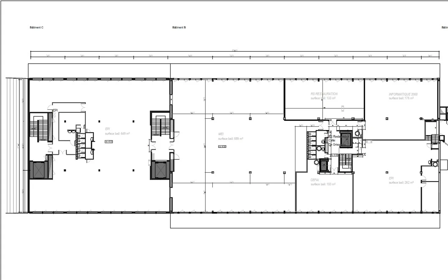
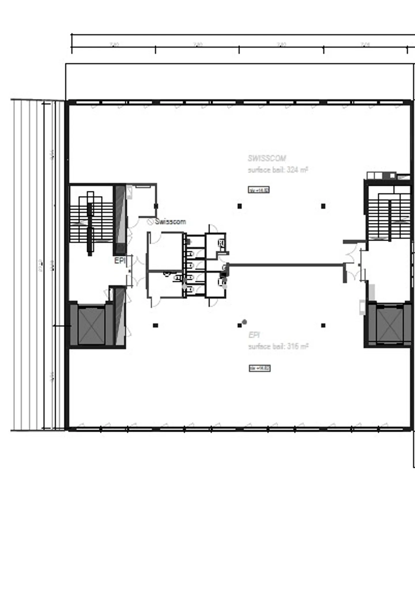
Teilbare Flächen ab 262 m²
Cafeteria mit Profiküche
Ladeflächen verfügbar
Besichtigung vereinbaren
Besichtigung buchen
1.703 m2 an handwerklichen und administrativen flächen zur miete im pav
1.703 m2 an handwerklichen und administrativen Flächen zur Miete im PAV
Teilbare, ausgestattete Räumlichkeiten ab 262 m2, schlüsselfertig
Aufzug
Große Cafeteria mit professioneller Küche
Sanitärblöcke mit Duschen
Lade-/Entladeplätze
1 Lastenaufzug (maximale Last 1.600 kg) und 2 Lastenaufzüge (maximale Last 3.200 kg)
Nutzlast: 1 Tonne
Höhe von Platte zu Platte: von 3,5 m bis 5,3 m
Sprinkler
Brandmeldeanlage
Miete ab CHF 230.-/m2/Jahr
Nebenkosten: CHF 20.-/m2/Jahr
17 Parkplätze (CHF 2.400.-/Einheit/Jahr)
Sofort...
Immobiliendetails
- Verfügbar ab
- Nach Vereinbarung
- Wohnfläche
- 649 m²



