Premium Büros im Quartier de l'Étang
Warum Sie diese Immobilie lieben werden
Flexible Bürolayouts
Hochwertige Ausstattung
Exzellente Anbindung
Besichtigung vereinbaren
Besichtigung mit Klaus buchen
Situé im Herzen des Quartier de l'Étang, einem dynamischen und nachhaltigen Wirtschaftsstandort, präsentiert sich Le Belvédère als das prestigeträchtigste Gebäude der Anlage. Es beherbergt unter anderem den Hauptsitz der Rothschild-Bank, was seine institutionelle und premium Ausrichtung unterstreicht.
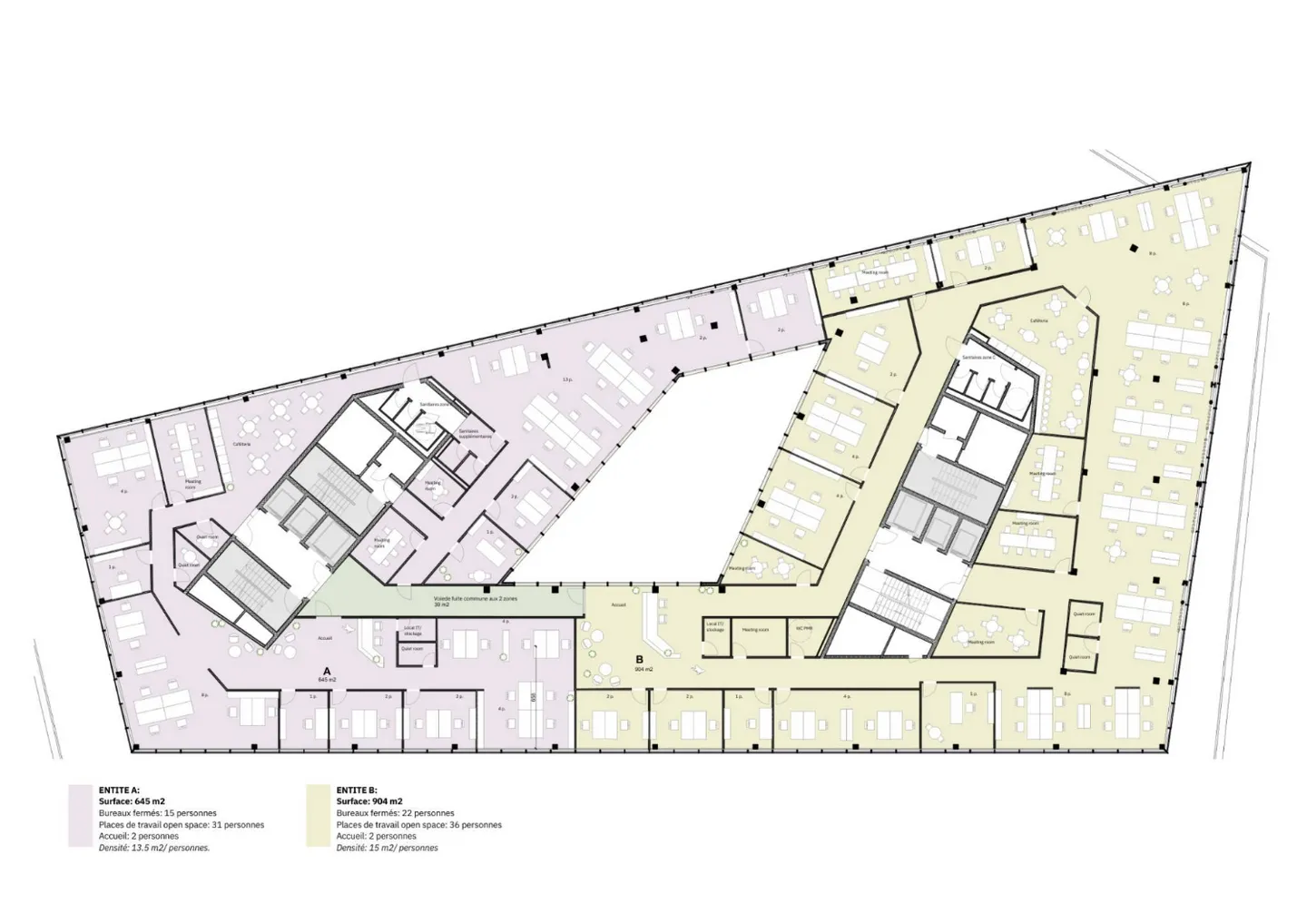
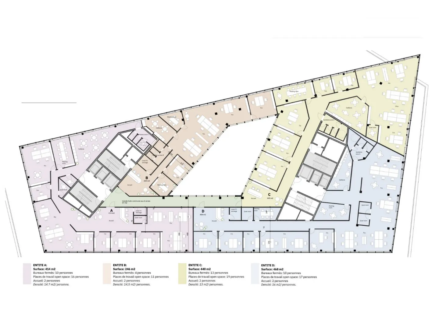
Wir bieten eine Bürofläche von etwa 1'600 m² zur Miete an, die vollständig unterteilt werden kann und eine große Flexibilität bei der Nutzung bietet sowie hochwertige Ausstattung.
Verfügbare Fläche...
Immobiliendetails
- Verfügbar ab
- Nach Vereinbarung
- Wohnfläche
- 246 m²
- Nutzfläche
- 246 m²


