Bürofläche mieten - Rue De Lyon 12, 1201 Genève
Warum Sie diese Immobilie lieben werden
Dynamisches Geschäftsviertel
Ausgezeichnete Verkehrsanbindung
Ideal für medizinische Tätigkeiten
Besichtigung vereinbaren
Besichtigung mit Dominguez buchen
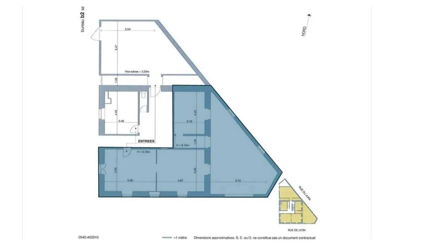
Büros von 110m2 - nahe Bahnhof
Wir bieten Ihnen einen Büroplatz von 110 m² im Erdgeschoss eines Wohnhauses, ideal gelegen in der 12, rue de Lyon, nur 9 Minuten zu Fuß vom Bahnhof Cornavin entfernt.
Das Viertel ist dynamisch, nahe der Innenstadt und bietet eine angenehme und kommerzielle Umgebung mit sehr guter Erreichbarkeit dank der zahlreichen TPG-Linien, die sich nur 210 m entfernt befinden (14, 15, 17, 18, 3, A2).
Zusammensetzung des Raumes:
3 Büros
ein Open-Space
1 Sanitäranlage auf dem Flur.
Dieser funktionale, gut ersc...
Immobiliendetails
- Verfügbar ab
- Nach Vereinbarung
- Wohnfläche
- 110 m²
- Nutzfläche
- 110 m²



