Bürofläche mieten - Rue De Lyon 12, 1201 Genève
Warum Sie diese Immobilie lieben werden
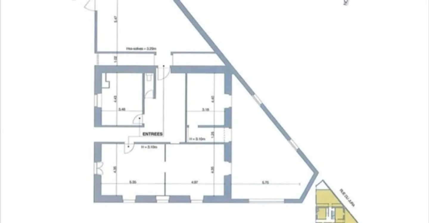
178 m² vielseitiger Raum
Ideal für medizinische Berufe
Ausgezeichnete ÖPNV-Anbindung
Besichtigung vereinbaren
Besichtigung mit maison.work buchen
Büros von 178m2 - in der Nähe des Bahnhofs
Wir bieten einen 178 m² großen Büroraum im Erdgeschoss eines Wohngebäudes an, das ideal gelegen ist in der 12, rue de Lyon, nur 9 Gehminuten vom Bahnhof Cornavin entfernt.
Die Nachbarschaft ist dynamisch, nahe dem Stadtzentrum und profitiert von einer angenehmen und geschäftlichen Umgebung, mit sehr guter Erreichbarkeit dank der vielen TPG-Linien, die nur 210 m entfernt sind (14, 15, 17, 18, 3, A2).
Zusammensetzung des Raums:
5 geschlossene Büros, dar...
Immobiliendetails
- Verfügbar ab
- Nach Vereinbarung
- Wohnfläche
- 178 m²
- Nutzfläche
- 178 m²



