Gewerbe mieten - Ringstrasse 12, 8317 Tagelswangen
Warum Sie diese Immobilie lieben werden
Grosse offene Fläche
Flexibles Bürokonzept
Einfacher Lieferzugang
Besichtigung vereinbaren
Besichtigung mit Kubaco buchen
Attraktiver Gewerberaum an optimaler Lage sucht Nachmieter
Attraktiver Gewerberaum an optimaler Lage sucht Nachmieter
Ringstrasse 12, Tagelswangen
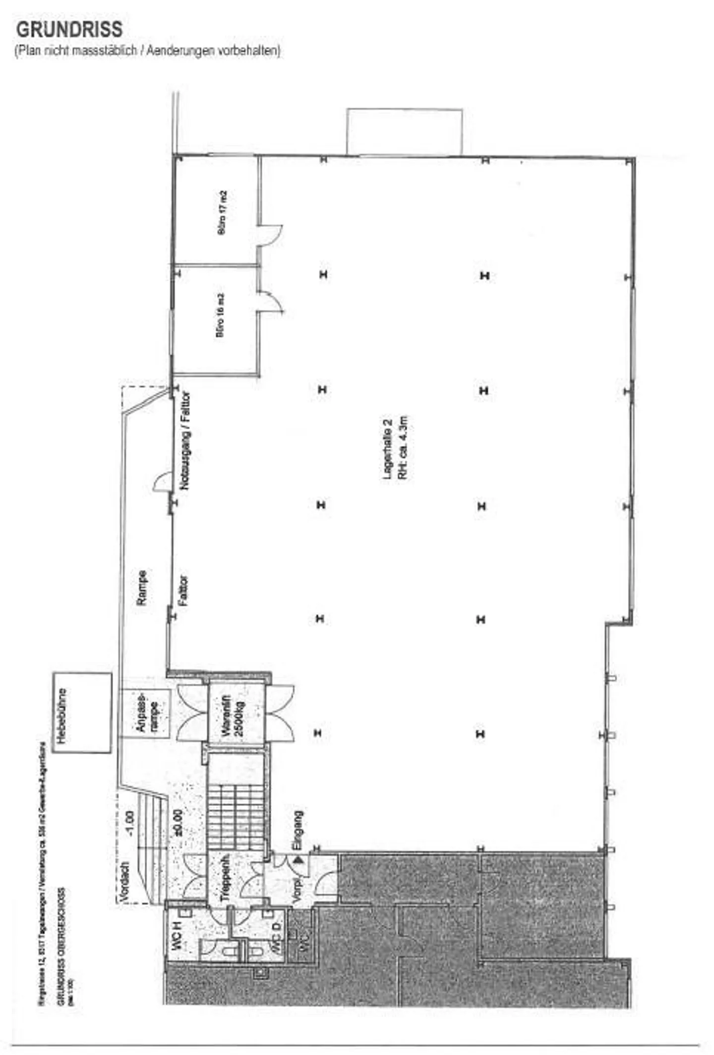
Ihr neuer Gewerberaum auf 536 m²
- Grosse offene Fläche sowie zwei Bürozellen, welche bei Bedarf zurückgebaut werden können;
- Helle Räumlichkeiten;
- Vielseitig nutzbar dank anpassungsfähigem Ausbau:
- Leichtbau-Trennwände
- Helle Beleuchtung
- Stromanschlüsse 230V sowie 400V
- Kabeltrasse
- Einfache Anlieferung dank Anpassrampe und Hebebühne;
- Überdachte Anlieferung bzw. Warenumschlagzone;
- Hohe Bodenbelastb...
Immobiliendetails
- Verfügbar ab
- Nach Vereinbarung



