Lagerraum mieten - Via Pobiette 11, 6928 Manno
Warum Sie diese Immobilie lieben werden
Öko-effiziente Bauweise
Hochwertige Materialien
Bequeme Zugänge
Besichtigung vereinbaren
Besichtigung buchen
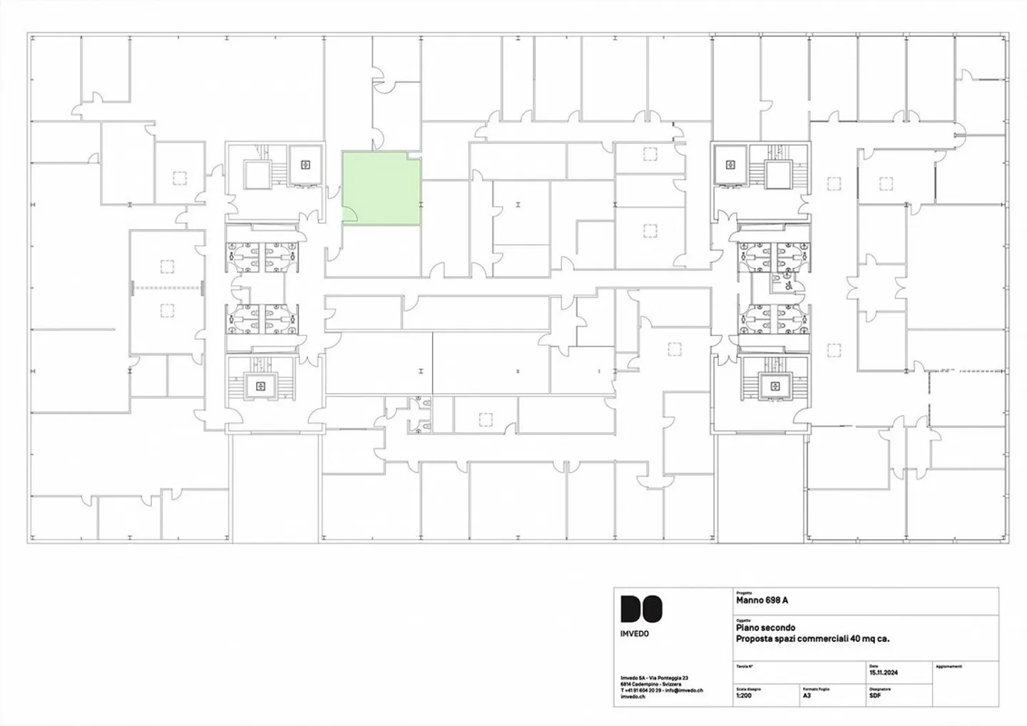
Lagerhallen / archive in manno - 22 oder 40 m²
Verfügbar ab einem zu vereinbarenden Datum, Flächen zur Nutzung als Lager oder Archiv, im zweiten Stock des Gebäudes Manno 698 A. Interessantes Gebäude mit folgenden Eigenschaften:
- energieeffiziente Konstruktion;
- hochwertige Materialien;
- hervorragende Wärme- und Schalldämmung;
- bequeme Zugänge;
- zahlreiche überdachte und Außenparkplätze;
- Hausmeister im Gebäude;
- Lastenaufzug und Lade- und Entladerampen.
Das Gebäude befindet sich an einem strategischen Punkt von Manno, in unmittelbarer Nähe de...
Immobiliendetails
- Verfügbar ab
- Nach Vereinbarung
- Baujahr
- 1999



