Bürofläche mieten - Via Pobiette 11, 6928 Manno
Warum Sie diese Immobilie lieben werden
Energieeffiziente Bauweise
Hochwertige Materialien
Ausgezeichnete Schalldämmung
Besichtigung vereinbaren
Besichtigung mit Imvedo buchen
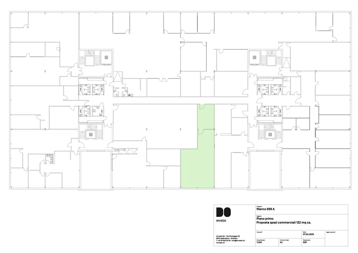
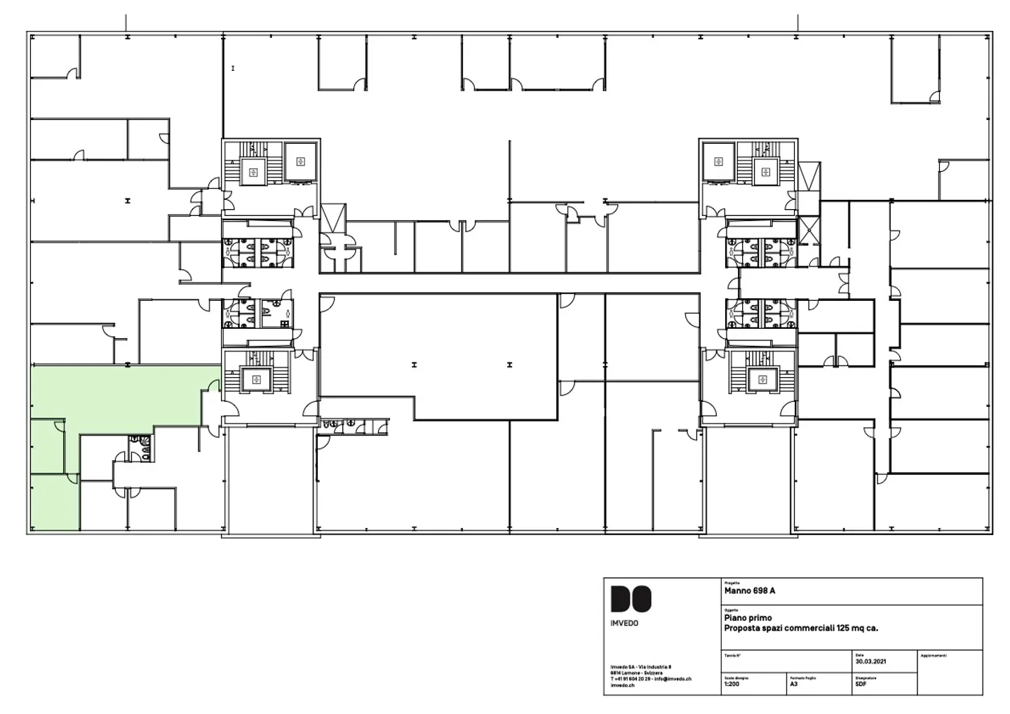
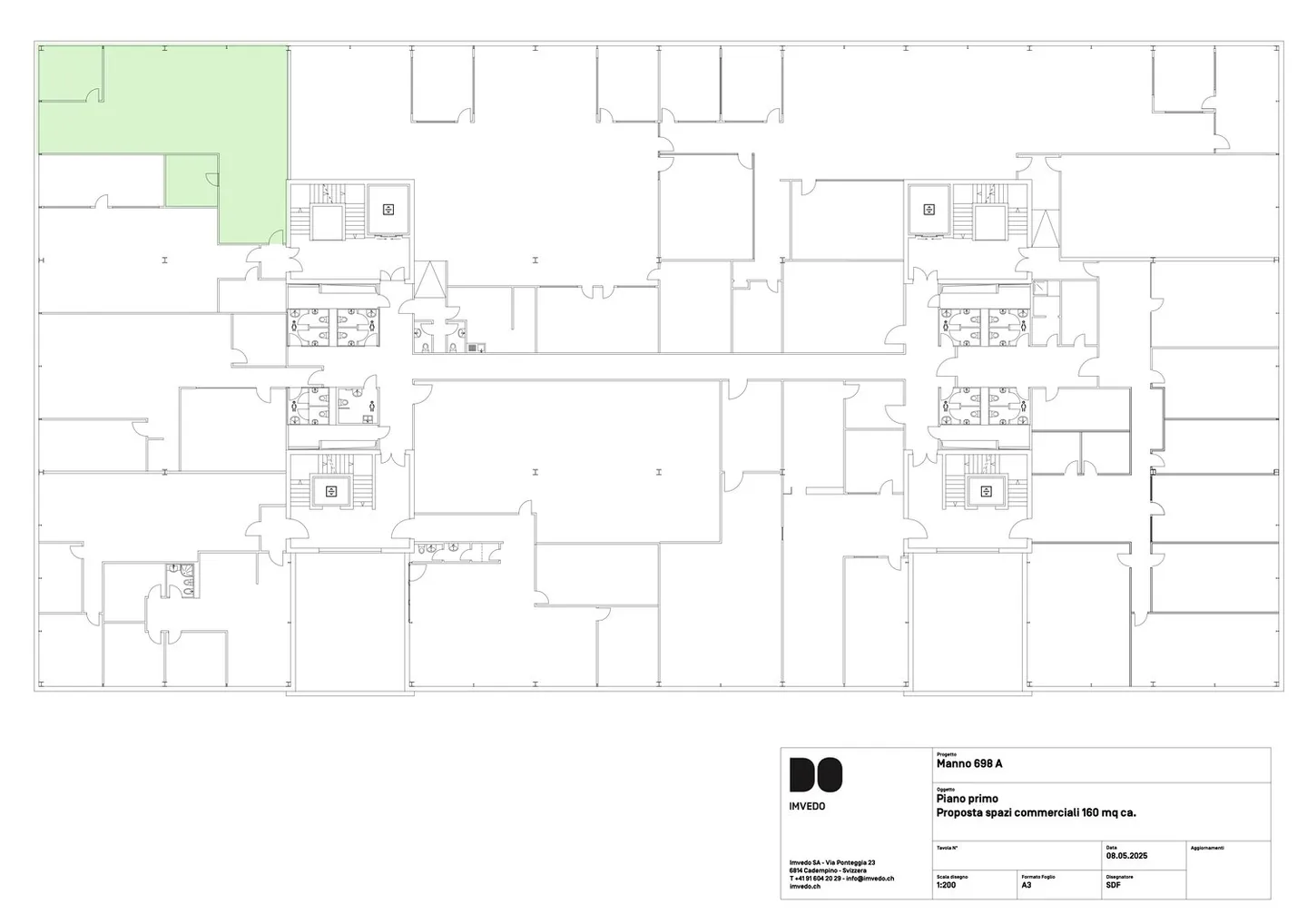
Büros in Manno - 122, 125 oder 160 m²
Verfügbar ab sofort oder zu einem zu vereinbarenden Termin, Flächen von 122, 125 oder 160 m², die als Büro genutzt werden können, im ersten Stock des Gebäudes Manno 698 A. Interessantes Gebäude mit folgenden Eigenschaften:
- energieeffiziente Konstruktion;
- Materialien von hoher Qualität;
- sehr gute Wärme- und Schalldämmung;
- komfortable Zugänge;
- zahlreiche überdachte und externe Parkplätze;
- Hausmeister, der im Gebäude wohnt;
- Lastenaufzug und Laderampen
Das Gebäude befindet sich in einem neural...
Kostenaufstellung
- Nettokosten
- CHF 2’186
- Zusätzliche Kosten
- CHF 15
- Gesamtkosten
- CHF 2’186
Immobiliendetails
- Verfügbar ab
- 06.08.2018
- Baujahr
- 1999
- Wohnfläche
- 122 m²



