Geschäft mieten - Chemin Vert 11, 1804 Corsier-sur-Vevey
1. Etage
CHF 4’100
-
Warum Sie diese Immobilie lieben werden
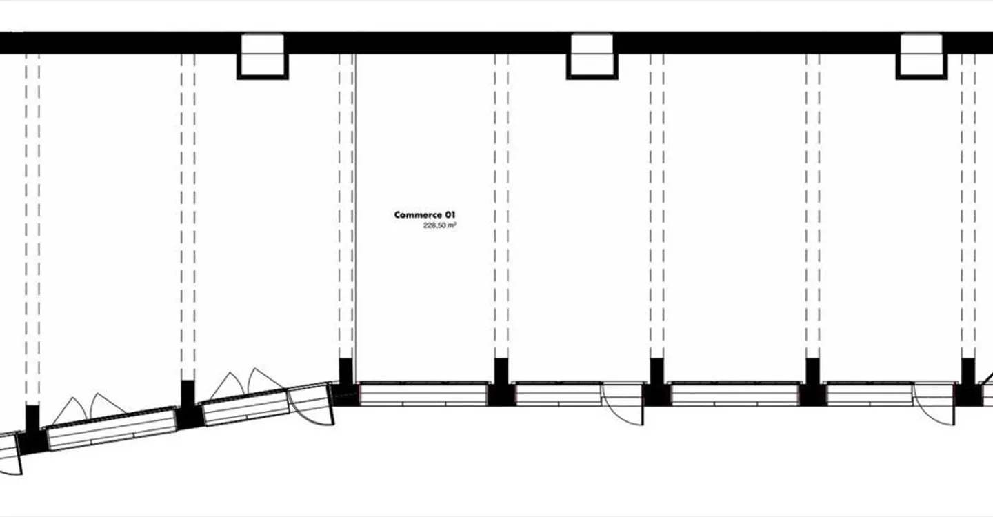
229m2 anpassbare Fläche
In einem renovierten Gebäude
Hohe Fußgängerfrequenz
Besichtigung vereinbaren
Besichtigung mit maison.work buchen
maison.work
maison.work
Diese Beschreibung wurde automatisch von Französisch übersetzt.
Aktivitätsfläche von 229m2 im Erdgeschoss eines vollständig renovierten Wohngebäudes mit 48 Wohneinheiten.
Zwei Gewerbeeinheiten an einer stark frequentierten Straße in einem gut erschlossenen und sich schnell entwickelnden Viertel.
Roh geliefert, nach den Wünschen des Mieters anpassbar.
Kostenaufstellung
- Nettokosten
- CHF 4’100
- Zusätzliche Kosten
- CHF 100
- Gesamtkosten
- CHF 4’100
Immobiliendetails
- Verfügbar ab
- Nach Vereinbarung
Agentur
maison.work
Ref: 19068
Online seit
08/11/2025
vor 19 Stunden
Standort
Chemin Vert 11, 1804 Corsier-sur-Vevey



